| | |  | Gut zu wissen: Hilfreiche Tipps und Tricks aus der Praxis prägnant, und auf den Punkt gebracht für Autodesk Produkte | | | |  | PNY erweitert seine Teams im Mittleren Osten und in Saudi-Arabien zur Unterstützung des strategischen Wachstums, eine Pressemitteilung
|
|
Autor
|
Thema: AutoCAD 2026 LT - Bemassung verändert sich (57 mal gelesen)
|
HRompel Ehrenmitglied V.I.P. h.c. Technischer Systemplaner - Elektrotechnik

 Beiträge: 3581 Registriert: 02.11.2001 ELCAD 7.11.0 SP1(KEINE "CL"-Lizenz, KEIN "Studio") ELCAD-Autodidakt seit Version 5.8.x Elcad : 02.2000 bis 11.2018 ================================== EPLAN P8 2.6 HF4 (Professional) Menüumfang: Expert (Autodidakt) EPlan: : 31.7.2010 bis 11.2018 =================================== DDS-CAD : 3.12.2018 - 30.11.2020 DDS-CAD 20/21: seit 03.02.2025 =================================== Trimble Nova: 04.01.2021 - 30.11.2024 =================================== AutoCAD-Erstkontakt: April 2012 in der VHS AutoCAD LT: Seit 02.12.2024 =================================== Moderator im ELCAD-Forum: 08.11.11 - 19.03.17 Moderator im "Trimble Nova"-Forum: 18.01.2021 - 20.02.2025 =================================== Prozessor: Intel(R) Core(TM) i7-7700 CPU @ 3.60GHz (3.60 GHz) Installierter RAM: 16,0 GB (15,9 GB verwendbar) Systemtyp: 64-Bit-Betriebssystem, Windows 11 Pro 24H2 Funktionspaket: Windows Feature Experience Pack 1000.26100.275.0
|
erstellt am: 30. Apr. 2026 10:41 <-- editieren / zitieren --> Unities abgeben:         
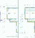
Moin, ich habe von einem Kunden eine DWG bekommen, ein der alle Gebäude und Etagen, in einer DWG sind. Einheit steht auf Meter. Um da vernüpftig mit zu arbeiten, habe ich einen neue Zeichnung angelegt und Einheit auch auf Meter eingestellt. Jetzt habe ich ein Etage markiert und erstmal ein Gruppe davon gemacht (ohne Gruppe, ist der Effekt der gleiche) und diese dann in die Zwischenablage kopiert. Neu Zeichnung öffnen, STRG+V, #0,0 und staunen. Wie man in der PDF sehen kann, sind in der unteren Etage nicht nur Maßlinien verschoben, sondern es haben sich auch Werte geändert. Bei zwei Gebäuden die ich auch aus dieser Zeichnung koipert habe, ist es nicht passiert. Ist Euch so etwas auch schon mal passiert? Eine Idee, was die Ursache ist und wie man die Ursache beseitigt? Gruß Heiko Nachtrag: Ich habe jetzt einen weiteren Gebäudeteil aus der Zeichnung vereinzelt und das funktionierte problemlos. Bleibt die Frage, wieso bei dieser Etage? ------------------ www.rompelsoft.de - von mir programmierte Tools [Diese Nachricht wurde von HRompel am 30. Apr. 2026 editiert.] [Diese Nachricht wurde von HRompel am 30. Apr. 2026 editiert.] Eine Antwort auf diesen Beitrag verfassen (mit Zitat/Zitat des Beitrags) IP |
cadwomen Ehrenmitglied V.I.P. h.c. Mädchen für fast alles
     
 Beiträge: 3156 Registriert: 26.08.2002 ACAD R11 - 2022/2024 (Revit und Recap 2024) ACAD LT 2013- 2022 ZWCAD 2015 Versuch "nun ja" [s]History P3D 2012/(13) SP und Hotfix([/s]<P> Windows 11 / 64 Bit<P>Prozessor Intel(R) Xeon(R) w5-2445 3.10 GHz RAM 256 GB Platte c: 1 TB Platte d: 8 TB<P>Dell U3818DW + Dell U2412M Monitor
|
erstellt am: 30. Apr. 2026 11:18 <-- editieren / zitieren --> Unities abgeben:          Nur für HRompel
Morgen , ich seh keinen Unterschied bzw sieht sehr ähnlich aus bei mir wenn dann kann das ggf vom Schriftstiel kommen wenn beide zb auf Standart stehen , aber eben verschiede in den Einstellungen sind cu cw ------------------ Also ich finde Unities gut ... und andere sicher auch ------------------------------------------------ cadwomen™ Plant ist nur die Spitze des Berges der da treibt ? Eine Antwort auf diesen Beitrag verfassen (mit Zitat/Zitat des Beitrags) IP |
cadffm Moderator 良い精神
       

 Beiträge: 22841 Registriert: 03.06.2002 System: F1 und Google
|
erstellt am: 30. Apr. 2026 11:40 <-- editieren / zitieren --> Unities abgeben:          Nur für HRompel
Hi, ich habe mehr Angst vor den Bemassungen welche kürzer sind, sich die Werte aber nicht geändert haben (links oben, 7.28)  >"Jetzt habe ich ein Etage markiert und erstmal ein Gruppe davon gemacht [...] und diese dann in die Zwischenablage kopiert." Und damit die Gruppe wieder zerstört. Hört sich nach einem merkwürdigen Workflow an, hoffe also du brauchst die Gruppe in der Quelldatei noch. - Mir der DWG könnte man nachsehen, mit der PDF nur raten: Die Bemassungen sind keine AutoCAD-Bemaßungen, oder manipuliert, oder direkt falsch erstellt (nicht über native Autodesk-Befehle erstellt). Das nur ein Teil der Bemassungen verspringt - okay, aber das nur ein Teil der Werte anders ist, das lässt gleich auf mehrere Probleme schließen. (PS: Du als CAD.de Anfänger, gebe dir doch bitte etwas mehr Mühe für EINDEUTIGE Dateinamen, auf CAD.de hat ein User doch nur ein Verzeichnis für AAALLLLLEEEE Anhänge und die Überschreibung erfolgt ja ohne Rückfrage, danke) Eine Antwort auf diesen Beitrag verfassen (mit Zitat/Zitat des Beitrags) IP |
HRompel Ehrenmitglied V.I.P. h.c. Technischer Systemplaner - Elektrotechnik

 Beiträge: 3581 Registriert: 02.11.2001 ELCAD 7.11.0 SP1(KEINE "CL"-Lizenz, KEIN "Studio") ELCAD-Autodidakt seit Version 5.8.x Elcad : 02.2000 bis 11.2018 ================================== EPLAN P8 2.6 HF4 (Professional) Menüumfang: Expert (Autodidakt) EPlan: : 31.7.2010 bis 11.2018 =================================== DDS-CAD : 3.12.2018 - 30.11.2020 DDS-CAD 20/21: seit 03.02.2025 =================================== Trimble Nova: 04.01.2021 - 30.11.2024 =================================== AutoCAD-Erstkontakt: April 2012 in der VHS AutoCAD LT: Seit 02.12.2024 =================================== Moderator im ELCAD-Forum: 08.11.11 - 19.03.17 Moderator im "Trimble Nova"-Forum: 18.01.2021 - 20.02.2025 =================================== Prozessor: Intel(R) Core(TM) i7-7700 CPU @ 3.60GHz (3.60 GHz) Installierter RAM: 16,0 GB (15,9 GB verwendbar) Systemtyp: 64-Bit-Betriebssystem, Windows 11 Pro 24H2 Funktionspaket: Windows Feature Experience Pack 1000.26100.275.0
|
erstellt am: 30. Apr. 2026 12:18 <-- editieren / zitieren --> Unities abgeben:         
Ihr habt gewonnen - ich hänge die DWG an. Es geht um die rot umrahmte Etage. Wenn ihr jetzt mal in Layout schaut, dann scheint in dieser Zeichnung noch mehr nicht in Ordnung zu sein. Kann man das automatisch reparieren oder ist die Zeichnung Mist? Gruß Heiko ------------------ www.rompelsoft.de - von mir programmierte Tools Eine Antwort auf diesen Beitrag verfassen (mit Zitat/Zitat des Beitrags) IP |
cadwomen Ehrenmitglied V.I.P. h.c. Mädchen für fast alles
     
 Beiträge: 3156 Registriert: 26.08.2002 ACAD R11 - 2022/2024 (Revit und Recap 2024) ACAD LT 2013- 2022 ZWCAD 2015 Versuch "nun ja" [s]History P3D 2012/(13) SP und Hotfix([/s]<P> Windows 11 / 64 Bit<P>Prozessor Intel(R) Xeon(R) w5-2445 3.10 GHz RAM 256 GB Platte c: 1 TB Platte d: 8 TB<P>Dell U3818DW + Dell U2412M Monitor
|
erstellt am: 30. Apr. 2026 12:46 <-- editieren / zitieren --> Unities abgeben:          Nur für HRompel
Zitat: Original erstellt von cadffm: Hi,ich habe mehr Angst vor den Bemassungen welche kürzer sind, sich die Werte aber nicht geändert haben (links oben, 7.28)  Mir der [b]DWG könnte man nachsehen, mit der PDF nur raten:[/i][/B]
es gab da mal ein Treiberthema ( CCC ) wo Bemaßung beim plotten ( PDF ) geändert wurden , aber das dürfte doch erledigt sein mit HP cu cw ------------------ Also ich finde Unities gut ... und andere sicher auch ------------------------------------------------ cadwomen™ Plant ist nur die Spitze des Berges der da treibt ? Eine Antwort auf diesen Beitrag verfassen (mit Zitat/Zitat des Beitrags) IP |
cadffm Moderator 良い精神
       

 Beiträge: 22841 Registriert: 03.06.2002 System: F1 und Google
|
erstellt am: 30. Apr. 2026 15:11 <-- editieren / zitieren --> Unities abgeben:          Nur für HRompel
Hi, also wie vermutet "dumme" Maßtextüberschreibungen enthalten, das erklärt die NICHT angepassten Maßtexte die Bemaßungen sind nicht voll assoziativ aber darüber hinaus nicht auffällig Ich konnte das Problem mit einer saubere Standardvorlage aber leider nicht nachvollziehen, damit bin ich wohl raus => finde keine Probleme >>"Wenn ihr jetzt mal in Layout schaut, dann scheint in dieser Zeichnung noch mehr nicht in Ordnung zu sein" Das Layout ist nicht eingerichtet, wo soll man in dieser purer-Zufall Konfiguration ein Problem erkennen?
>>"Kann man das automatisch reparieren oder ist die Zeichnung Mist?" Was auch immer du an dieser Stelle meinst, ich denke nicht das dieses Modell kompletter Mist ist.  Eine Antwort auf diesen Beitrag verfassen (mit Zitat/Zitat des Beitrags) IP |
| Anzeige.:
Anzeige: (Infos zum Werbeplatz >>)
 |