| | |
 | Gut zu wissen: Hilfreiche Tipps und Tricks aus der Praxis prägnant, und auf den Punkt gebracht für Autodesk Produkte |
| | |
 | Schindler GmbH hat in Phoenix/PLM von ORCON flexible Lösung gefunden , ein Anwenderbericht
|
|
Autor
|
Thema: Unterbruch Bemassungslinie (928 mal gelesen)
|
Wolfsblut Mitglied technische Zeichnerin

 Beiträge: 89 Registriert: 24.02.2006 IV10SP3a
|
erstellt am: 22. Mrz. 2006 09:44 <-- editieren / zitieren --> Unities abgeben:         
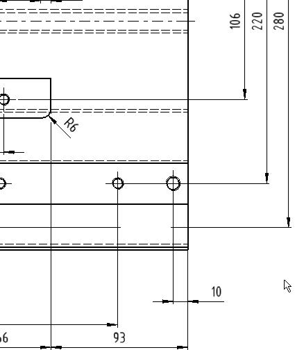
Tach auch! Anhängendes File: Bei der Lochvermassung 280 sind beide Bezugslinien vom Mass ein Stück unterbrochen. Kann mir jemand sagen warum? Ich habe in dieser Zeichnung ausser der unterbrochenen Ansicht noch 2 Schnitte gelegt. Die befinden sich aber nicht an dieser Stelle. (Das Programm hab ich schon neu aufgestartet) thank's for help! Eine Antwort auf diesen Beitrag verfassen (mit Zitat/Zitat des Beitrags) IP |
Mario Wipf Mitglied Dipl. Ing. FH, MAS FHO BAE
  
 Beiträge: 535 Registriert: 07.10.2003 AIS 9 SP3, AIS 10 WINDOWS XP Pro Fujitsu Siemens CELSIUS M430 Nvidia Quadro FX 1400 128 MB
|
erstellt am: 22. Mrz. 2006 11:00 <-- editieren / zitieren --> Unities abgeben:          Nur für Wolfsblut
Hallo Wolfsblut Wie verhält sich die Vermassung bzw. der Unterbruch, wenn Du die Vermassung in Horizontaler Richtung nach links verschiebst, bleibt der Unerbruch an der gleichen Stelle oder wandert der irgendwie mit ? Hast Du das Mass schon mal neu erzeugt und der Unterbruch ist immer noch an der gleichen Stelle ? Ich würde sonst mal das File hochladen (mit Bauteil/Baugruppe) Gruss Mario Eine Antwort auf diesen Beitrag verfassen (mit Zitat/Zitat des Beitrags) IP |
Wolfsblut Mitglied technische Zeichnerin

 Beiträge: 89 Registriert: 24.02.2006 IV10SP3a
|
erstellt am: 22. Mrz. 2006 11:07 <-- editieren / zitieren --> Unities abgeben:         
ist noch witzig! wenn ich das Mass nach links bewege, verschwindet der Unterbruch. Vorhin habe ich das Horizontalmass "10" gelöscht und habe naher das Mass 220 bewegt. der Unterbruch verschwand. Sobald ich aber das Horizontalmass "10" wieder neu vermasst habe, war der Unterbruch wieder da. Eine Antwort auf diesen Beitrag verfassen (mit Zitat/Zitat des Beitrags) IP |
Wolfsblut Mitglied technische Zeichnerin

 Beiträge: 89 Registriert: 24.02.2006 IV10SP3a
|
erstellt am: 22. Mrz. 2006 15:11 <-- editieren / zitieren --> Unities abgeben:         
Also das Problem steht immer noch offen! Vorhin habe ich das Mass nur eine kleine Distanz verschoben und der Unterbruch war weg. Manchmal ist er da, machmal nicht!  das ist bestimmt ein Prgrammfehler! naja... in den meisten fällen ist ja immer der Anwender schuld! Eine Antwort auf diesen Beitrag verfassen (mit Zitat/Zitat des Beitrags) IP |

| |
lbcad Ehrenmitglied V.I.P. h.c. Dipl.-Ing. Maschinenbau und CAD-Trainer

 Beiträge: 3835 Registriert: 15.02.2001 DELL Precision 7520 Win10Pro-64 Inventor mit Vault Professional 2024 --------------------- Während man es aufschiebt, verrinnt das Leben. Lucius Annaeus Seneca (ca. 4 v. Chr - 65 n. Chr.)
|
erstellt am: 23. Mrz. 2006 11:43 <-- editieren / zitieren --> Unities abgeben:          Nur für Wolfsblut
aber - aber, ein einfaches Maß dran schreiben, das sollte ein CAD-Programm schon fehlerfrei können ------------------ Gruß Lothar --------------------------------------------------- Während man es aufschiebt, verrinnt das Leben. —Lucius Annaeus Seneca (ca. 4 v. Chr - 65 n. Chr.) Eine Antwort auf diesen Beitrag verfassen (mit Zitat/Zitat des Beitrags) IP |