| | |
 | Gut zu wissen: Hilfreiche Tipps und Tricks aus der Praxis prägnant, und auf den Punkt gebracht für Autodesk Produkte |
| | |
 | NVIDIA RTX PRO 6000 Blackwell Max-Q Workstation Edition, eine Pressemitteilung
|
|
Autor
|
Thema: Auschnitt in Schnittansicht (3038 mal gelesen)
|
Tigerente Mitglied Technikerin

 Beiträge: 77 Registriert: 28.11.2002
|
erstellt am: 07. Feb. 2003 08:27 <-- editieren / zitieren --> Unities abgeben:         
Hallo, ich versuche vergeblich einen Ausschnitt in einer Schnittansicht zu erstellen, und finde da keine Lösung. Oder gibt es die Möglichkeit, die Erstansicht als Schnitt darzuzstellen? Kann es sein, dass dieses auch mal wieder nicht funktioniert?
------------------ Viel Spaß noch, Jenny Eine Antwort auf diesen Beitrag verfassen (mit Zitat/Zitat des Beitrags) IP |
Angelika Hädrich Ehrenmitglied V.I.P. h.c. Application Engineer

 Beiträge: 5123 Registriert: 12.07.2000
|
erstellt am: 07. Feb. 2003 09:05 <-- editieren / zitieren --> Unities abgeben:          Nur für Tigerente
Hi Tigerente, die Erstansicht geschnitten wird nichts - wo willst Du den Schnittverlauf angeben? Aber einen Ausschnitt in einer Schnittansicht geht. Erstansicht erstellen, dann den Schnitt legen... * anklicken der geschnittenen Ansicht (gestrichelter Rahmen) * Funktion Skizze * einzeichnen eines Kreises (oder ein anderes geschlossenes Profil ) * Skizze beenden * jetzt die Schnittansicht anklicken * Funktion Ausschnittansicht * (Profil wird automatisch gefunden) Punkt wählen, eventuell Versatz OK siehe Anhang Gruss Angelika Eine Antwort auf diesen Beitrag verfassen (mit Zitat/Zitat des Beitrags) IP |
PeterW Mitglied Techniker (HTL Maschinenbau)
  
 Beiträge: 560 Registriert: 08.08.2002 IV 2010 XP2007 Intel Core Duo 2,4 GHz / 3 GB 4 GByte RAM NVIDIA Quadro FX 1500
|
erstellt am: 07. Feb. 2003 09:23 <-- editieren / zitieren --> Unities abgeben:          Nur für Tigerente
|
Tigerente Mitglied Technikerin

 Beiträge: 77 Registriert: 28.11.2002
|
erstellt am: 07. Feb. 2003 09:25 <-- editieren / zitieren --> Unities abgeben:         
Hallo Angelika, ich habe mich mal wieder zu undeutlich ausgedrückt... Einen Ausschnitt in einem Einzelteil, dass im Schnitt gezeigt wird habe ich hinbekommen, das Problem ist die Baugruppe. Ich bin wie bei einem Einzelteil vorgegangen, es wird zwar eine Ausschnitt erstelle, aber ich sehe ihn nicht. ------------------ Viel Spaß noch, Jenny Eine Antwort auf diesen Beitrag verfassen (mit Zitat/Zitat des Beitrags) IP |
Angelika Hädrich Ehrenmitglied V.I.P. h.c. Application Engineer

 Beiträge: 5123 Registriert: 12.07.2000
|
erstellt am: 07. Feb. 2003 10:35 <-- editieren / zitieren --> Unities abgeben:          Nur für Tigerente
|
Angelika Hädrich Ehrenmitglied V.I.P. h.c. Application Engineer

 Beiträge: 5123 Registriert: 12.07.2000
|
erstellt am: 07. Feb. 2003 10:45 <-- editieren / zitieren --> Unities abgeben:          Nur für Tigerente
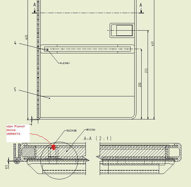
zur Verdeutlichung: Ich meine von der Schnittfläche bis zur Buchse sind es ja ca. 100 (wenn man die Bemaßung so überfliegt), gewählt wurde bestimmt ein Punkt in Höhe der Schnittfläche..., vielleich bringts ja schon ein Versatz Eine Antwort auf diesen Beitrag verfassen (mit Zitat/Zitat des Beitrags) IP |
Tigerente Mitglied Technikerin

 Beiträge: 77 Registriert: 28.11.2002 Pro/E Wildfire M180 Windows XP
|
erstellt am: 07. Feb. 2003 11:05 <-- editieren / zitieren --> Unities abgeben:         
|
Angelika Hädrich Ehrenmitglied V.I.P. h.c. Application Engineer

 Beiträge: 5123 Registriert: 12.07.2000
|
erstellt am: 07. Feb. 2003 11:29 <-- editieren / zitieren --> Unities abgeben:          Nur für Tigerente
|
Tigerente Mitglied Technikerin

 Beiträge: 77 Registriert: 28.11.2002 Pro/E Wildfire M180 Windows XP
|
erstellt am: 07. Feb. 2003 12:11 <-- editieren / zitieren --> Unities abgeben:         
Es ändert sich nur die Schraffure, so das ich überall zwei verschiedene Schraffuren pro Bauteil habe. So, ich habe jetzt mal was anders ausprobiert. Ich habe in der Baugruppe eine Bohrung erzeugt und zu meinem Ausschnitt gesagt bis Bohrung, immer noch keinen Ausbruch. Vielleicht gebe ich es bei dieser Baugruppe auf und hoffe , dass es bei einer anderen funktioniert. ------------------ Viel Spaß noch, Jenny Eine Antwort auf diesen Beitrag verfassen (mit Zitat/Zitat des Beitrags) IP |
Angelika Hädrich Ehrenmitglied V.I.P. h.c. Application Engineer

 Beiträge: 5123 Registriert: 12.07.2000
|
erstellt am: 07. Feb. 2003 12:43 <-- editieren / zitieren --> Unities abgeben:          Nur für Tigerente
|
Tigerente Mitglied Technikerin

 Beiträge: 77 Registriert: 28.11.2002 Pro/E Wildfire M180 Windows XP
|
erstellt am: 07. Feb. 2003 13:16 <-- editieren / zitieren --> Unities abgeben:         
|
thomas109 Moderator Dompteur
       

 Beiträge: 9358 Registriert: 19.03.2002 Dell620s i5 Geforce GT 620 6GB;Lenovo X240; Citrix Desktop; Lenovo S30; IV 4 - 2019 RIP, aktiv 2020 und 2023 produktiv AIS2023.5 +PartSolutions / ECTR AICE .
|
erstellt am: 07. Feb. 2003 19:06 <-- editieren / zitieren --> Unities abgeben:          Nur für Tigerente
Hallo Jenny! Hallo Angelika! War heute auch wieder unterwegs und habe das erst jetzt gesehen. Mit SP2 wurde einiges bei unterbrochenen Ansichten repariert, aber es ist noch vieles offen. Auch für die Stabilität der IDW (geht sie überhaupt wieder auf?)sollte man IMHO auf weitere Ableitungen daraus verzichten. Selbst bei Bauteilen muß man die Skizzen für den Ausbruch "hinschätzen" und nach Dimensiosnänderungen ist sie wieder irgendwo (trotz festhängen). Und Siegies Isometrie vom unterbrochenen 3/4-Schnitt durch den Plunger schaut mit SP2 nur anders aus, aber noch immer nicht richtig.
------------------ lg  Tom mcds Datensystem GmbH Eine Antwort auf diesen Beitrag verfassen (mit Zitat/Zitat des Beitrags) IP |
Dieter Scholz Mitglied Ambitionierter Konstrukteur
  
 Beiträge: 823 Registriert: 15.01.2001 Föderationsakademie: kleines iPartinium Blech-bachelor, Skeletonium-Volontär, alles in Abendschule...
|
erstellt am: 16. Jul. 2003 17:39 <-- editieren / zitieren --> Unities abgeben:          Nur für Tigerente
Zitat: Original erstellt von thomas109: Mit SP2 wurde einiges bei unterbrochenen Ansichten repariert, aber es ist noch vieles offen....
@thomas109: Ist das richtig das wenn man eine Ansicht "unterbricht" das diese Unterbrechung automatisch auch in der "Erstansicht" (auf die sich mehrere Schnitte und Details beziehen) auswirkt? Gruß
------------------ CADworkerDieter [Scandinavian Akzent ein] aktualisierst du noch oder konstruierst du schon...? [Scandinavian Akzent aus] Eine Antwort auf diesen Beitrag verfassen (mit Zitat/Zitat des Beitrags) IP |
thomas109 Moderator Dompteur
       

 Beiträge: 9358 Registriert: 19.03.2002 Dell620s i5 Geforce GT 620 6GB;Lenovo X240; Citrix Desktop; Lenovo S30; IV 4 - 2019 RIP, aktiv 2020 und 2023 produktiv AIS2023.5 +PartSolutions / ECTR AICE .
|
erstellt am: 16. Jul. 2003 20:33 <-- editieren / zitieren --> Unities abgeben:          Nur für Tigerente
Hi D13t3r! Wenn Du von einer Ansicht, in der es eine Ausschnittansicht gibt, eine weitere Ansicht ableitest, wird das "Aufbrechen" mit vererbt. Wenn Du zuerst die weiteren Ansichten ableitest, und dann in der Mutter die Ausschnittansicht erstellst, wird an den Töchtern nichts vermurkst. Bei den parallelen Ansichten/Schnitten etc. wird nur der Zustand der Erstansicht bei der Erstellung mit vererbt. Nachträgliche Zusätze schlagen nicht mehr durch. Bei der unterbrochene Ansicht ist das nicht so, aber das kennst Du ja selbst. lg und Prost ------------------ lg Tom mcds Datensystem GmbH
[Diese Nachricht wurde von thomas109 am 16. Juli 2003 editiert.] Eine Antwort auf diesen Beitrag verfassen (mit Zitat/Zitat des Beitrags) IP |