| | |
 | Gut zu wissen: Hilfreiche Tipps und Tricks aus der Praxis prägnant, und auf den Punkt gebracht für NX |
| | |
 | Productronica 2025 - Weltleitmesse für Elektronikfertigung, eine Veranstaltung am 18.11.2025
|
|
Autor
|
Thema: Zeichnungsausleitung: Formelementparameter kein FE auswählbar, nachdem gespeichert (2496 mal gelesen)
|
spaboleo Mitglied
 Beiträge: 4 Registriert: 12.06.2009 NX 5.0.3.2
|
erstellt am: 12. Jun. 2009 13:12 <-- editieren / zitieren --> Unities abgeben:         
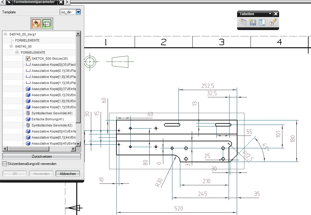
Hallihallo ihr Lieben, ich würde gerne über das Tool "Formelementparameter" in der Zeichnungserstellung auf die hinterlegten Parameter zugreifen. Dies ist auch ohne Weiteres möglich, solange die Datei nicht abgespeichert, geschlossen und neu geladen wird. Normaler Weise öffnet sich der Dialog "Formelementparameter" mit einem Modellbaum, der sich aufklappen lässt und in dem man die einzelnen Formelemente angezeigt bekommt (so ähnlich wie im Teilenavigator). Nachdem gespeichert und neu geladen wurde, sind diese Elemente jedoch nicht mehr auswählbar und werden auch im Modellbaum des Dialogfensters nicht mehr angezeigt. Stattdessen steht dort in großen Lettern "FORMELEMENTE". Ist das ein bekannter Bug von NX5? Oder weiß jemand woran das liegen könnte (Anwendungsfehler meinerseits)?
Vielen Dank, Liebe Grüße  Eine Antwort auf diesen Beitrag verfassen (mit Zitat/Zitat des Beitrags) IP |
spaboleo Mitglied
 Beiträge: 4 Registriert: 12.06.2009 NX 5.0.3.2
|
erstellt am: 14. Jun. 2009 19:07 <-- editieren / zitieren --> Unities abgeben:         
Hallo, ein Bekannter, der NX6 nutzt, hat das Tool ebenfalls für mich getestet und das Problem hat sich in der neuen Version sogar noch verschlimmert. Direkt von Anfang an ist kein einziges Formelement auswählbar und nicht erst nach dem ersten Speichern und Schließen des Programmes. Liebe Grüße Eine Antwort auf diesen Beitrag verfassen (mit Zitat/Zitat des Beitrags) IP |
uwe.a Ehrenmitglied maschbau-ing.
    
 Beiträge: 1939 Registriert: 20.12.2000 Windows7/64Pro Vmware UG16-Nx10beta
|
erstellt am: 14. Jun. 2009 21:08 <-- editieren / zitieren --> Unities abgeben:          Nur für spaboleo
|
bbking Mitglied
   
 Beiträge: 1419 Registriert: 30.01.2002
|
erstellt am: 15. Jun. 2009 10:47 <-- editieren / zitieren --> Unities abgeben:          Nur für spaboleo
hallo spaboleo! zeichnung öffnen, baugruppen-navigator => rechte maustaste auf einzelteil-komponente => öffnen => komponente vollständig jetzt sollten die formelemente aufgelistet werden. HTH !! Eine Antwort auf diesen Beitrag verfassen (mit Zitat/Zitat des Beitrags) IP |
spaboleo Mitglied
 Beiträge: 4 Registriert: 12.06.2009 NX 5.0.3.2
|
erstellt am: 15. Jun. 2009 12:19 <-- editieren / zitieren --> Unities abgeben:         
Vielen Dank für die Antworten  Die Liste, wie sie im Screenshot von uwe.a, zu erkennen ist habe ich beim ersten Öffnen der Zeichnung, sobald ich speichere sind alle Elemente unter "FORMELEMENTE" weg. Ich kann es gerade nicht überprüfen, aber es klingt einleuchtend, dass dieses "teilweise laden" von Komponenten die Fehlerquelle ist. Aber gibt es diese Funktion nicht nur bei Baugruppen, um Resourcen zu schonen, wenn man Komplexere bearbeitet? Probleme hat mir allerdings die Zeichnungsausleitung von einer Einzelkomponente bereitet. Na ich werde es schnellstmöglich überprüfen. Nochmals vielen Dank für die kompetente Hilfe!  Liebe Grüße Eine Antwort auf diesen Beitrag verfassen (mit Zitat/Zitat des Beitrags) IP |
Grips Mitglied Techniker
  
 Beiträge: 535 Registriert: 21.09.2004 WIN10 Aktuell TC/NX1973 (NX2306)
|
erstellt am: 15. Jun. 2009 14:35 <-- editieren / zitieren --> Unities abgeben:          Nur für spaboleo
|

| |
spaboleo Mitglied
 Beiträge: 4 Registriert: 12.06.2009 NX 5.0.3.2
|
erstellt am: 19. Jun. 2009 09:52 <-- editieren / zitieren --> Unities abgeben:         
Zitat: Original erstellt von bbking: hallo spaboleo!zeichnung öffnen, baugruppen-navigator => rechte maustaste auf einzelteil-komponente => öffnen => komponente vollständig jetzt sollten die formelemente aufgelistet werden. HTH !!
Der Vollständigkeit halber: Ich konnte es endlich testen und es lag genau daran!  Nochmals vielen, vielen Dank!
Eine Antwort auf diesen Beitrag verfassen (mit Zitat/Zitat des Beitrags) IP |