| | |
 | Gut zu wissen: Hilfreiche Tipps und Tricks aus der Praxis prägnant, und auf den Punkt gebracht für Autodesk Produkte |
| | |
 | Exklusives EDU-Programm für RTX PRO Blackwell, eine Pressemitteilung
|
|
Autor
|
Thema: Bemassung (1515 mal gelesen)
|
caaddy Mitglied Bauzeichnerin

 Beiträge: 16 Registriert: 13.10.2003
|
erstellt am: 15. Okt. 2003 22:09 <-- editieren / zitieren --> Unities abgeben:         
Hallo bin ganz neu hier und im thema adt 3.3 bin gerade drüber was zu vermassen doch wenn ich eine masskette hab dann stehen bestimmt ein paar zahlen über einnahnter und ich weis nicht wie ich die nach oben oder etwas dehnen kann. Vielleicht kann mir ja jemand helfen. Mfg. caaddy
Eine Antwort auf diesen Beitrag verfassen (mit Zitat/Zitat des Beitrags) IP |
startrek Mitglied Architekt
   
 Beiträge: 1361 Registriert: 13.02.2003 Win7ultimate/ACA2010
|
erstellt am: 15. Okt. 2003 22:53 <-- editieren / zitieren --> Unities abgeben:          Nur für caaddy
|
charlieBV Ehrenmitglied V.I.P. h.c. Bauzeichnerin

 Beiträge: 9319 Registriert: 28.08.2003 Win 10 Pro
|
erstellt am: 16. Okt. 2003 08:26 <-- editieren / zitieren --> Unities abgeben:          Nur für caaddy
Hi, wie Nancy schon sagte wären ein paar klitzekleine Infos mehr nicht schlecht, aber ich versuche mich mal an der Ferndiagnose: Maßkette krank, Arznei: klicke die Maskette mit der rechten Maustaste an, im Kontextmenü Maßtextgriffe aktivieren (relativ weit unten), dann erhalten die Maßzahlen beim wiederanklicken der Maßkette kleine Kästchen, an denen du die Zahlen einzeln verschieben kannst. Vorsicht: Wenn der Ofang aktiviert ist neigt die Maßzahl zu einem kleinen Ausflug zum anfang oder Ende der Maßkette, und, was noch viel übler ist, damit überschriebst du die Maßkette, d.h., wenn du im Nachhinein den Stil änderst, dann wird diese Maßkette sich optisch nicht mitändern! Also erst Stil ändern, dann Maßtextgriffe aktivieren!!! Schönen Gruß Charlie Eine Antwort auf diesen Beitrag verfassen (mit Zitat/Zitat des Beitrags) IP |
caaddy Mitglied Bauzeichnerin

 Beiträge: 16 Registriert: 13.10.2003
|
erstellt am: 16. Okt. 2003 18:37 <-- editieren / zitieren --> Unities abgeben:         
Dank für die schnelle Antwort aber ich arbeite an einen Englischen prog. und mein eng. ist absolud sch..... kannst du mir das auch in eng. erklären. Und mein problem ist siehe file und wie bekomm ich eine norm gerechte bemassung nicht diese hoch 61 und was weis ich noch alles ich brauch doch nur die hoch 5. Mfg. caaddy Eine Antwort auf diesen Beitrag verfassen (mit Zitat/Zitat des Beitrags) IP |
dr-nikolai Ehrenmitglied

 Beiträge: 1790 Registriert: 10.04.2002
|
erstellt am: 16. Okt. 2003 18:45 <-- editieren / zitieren --> Unities abgeben:          Nur für caaddy
hi caaddy, da ich keine ahnung habe, wie "maßtextgriffe aktivieren" auf englisch heißt, würde ich dir empfehlen, dass du die maßkette mit der rechten maustaste anklickst (so dass das kontextmenu zu erkennen ist) und dann nochmal einen screenshot reinhängst. dann können wir dir bestimmt weiterhelfen. ------------------ www.mbillep.de Offizieller (defun-Partner www.defun.de Eine Antwort auf diesen Beitrag verfassen (mit Zitat/Zitat des Beitrags) IP |
caaddy Mitglied Bauzeichnerin

 Beiträge: 16 Registriert: 13.10.2003
|
erstellt am: 16. Okt. 2003 20:14 <-- editieren / zitieren --> Unities abgeben:         
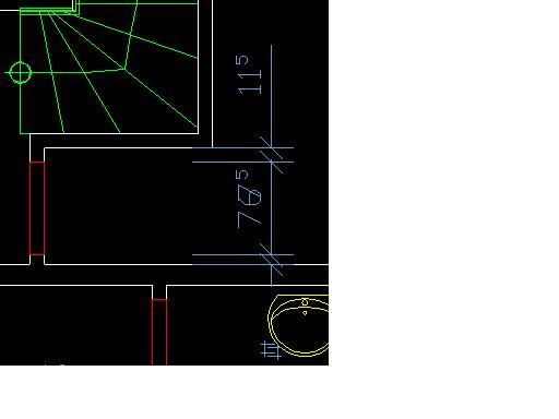
Hallo das Problem müsstest du eigentlich erkennen es stehen zwei zahlen über einander die 76 und die 7 und ich kann aktivieren was ich will es geht nicht ich hab auch noch keine richtige einstellung gemacht da ich das so nach und nach machen möchte du wenn ich das prog. vielleicht besser verstehe aber wenn mir jemand helfen kann wär ich auch dankbar. caaddy Eine Antwort auf diesen Beitrag verfassen (mit Zitat/Zitat des Beitrags) IP |
Kramer24 Moderator Architekt
       
 Beiträge: 5898 Registriert: 09.11.2001 AutoCAD Architecture 2023 WIN 10
|
erstellt am: 17. Okt. 2003 09:12 <-- editieren / zitieren --> Unities abgeben:          Nur für caaddy
Hallo, ich denke mal, dass es eine Einstellung der Textpositionierung unter Format-> Bemaßungsstil-> ändern-> einpassen (unten links im Fenster) ist... Lothar ------------------ "Stellt Euch vor, es geht, und keiner kriegt's hin." (Neuss) [Diese Nachricht wurde von Kramer24 am 17. Oktober 2003 editiert.] Eine Antwort auf diesen Beitrag verfassen (mit Zitat/Zitat des Beitrags) IP |
caaddy Mitglied Bauzeichnerin

 Beiträge: 16 Registriert: 13.10.2003
|
erstellt am: 17. Okt. 2003 10:14 <-- editieren / zitieren --> Unities abgeben:         
|
Kramer24 Moderator Architekt
       
 Beiträge: 5898 Registriert: 09.11.2001 AutoCAD Architecture 2023 WIN 10
|
erstellt am: 17. Okt. 2003 10:20 <-- editieren / zitieren --> Unities abgeben:          Nur für caaddy
Caaddy, Du bemaßt doch mit der AEC-Bemassung (Werkzeugkasten ADT), oder? Vorher musst Du unter Optionen-> AEC Bemaßung-> das Hochstellen der mm einstellen Lothar ------------------ "Stellt Euch vor, es geht, und keiner kriegt's hin." (Neuss) Eine Antwort auf diesen Beitrag verfassen (mit Zitat/Zitat des Beitrags) IP |
caaddy Mitglied Bauzeichnerin

 Beiträge: 16 Registriert: 13.10.2003
|
erstellt am: 17. Okt. 2003 10:38 <-- editieren / zitieren --> Unities abgeben:         
|
charlieBV Ehrenmitglied V.I.P. h.c. Bauzeichnerin

 Beiträge: 9319 Registriert: 28.08.2003 Win 10 Pro
|
erstellt am: 17. Okt. 2003 12:37 <-- editieren / zitieren --> Unities abgeben:          Nur für caaddy
|
Kramer24 Moderator Architekt
       
 Beiträge: 5898 Registriert: 09.11.2001 AutoCAD Architecture 2023 WIN 10
|
erstellt am: 17. Okt. 2003 15:10 <-- editieren / zitieren --> Unities abgeben:          Nur für caaddy
Ich hätte auch vorgeschlagen,dass einer Dir ein Beispiel postet. Ich habe gerade nur 2004 vorliegen. Viellleicht kannst Du mal eine Deiner Maßketten posten, damit wir sehen können woran es hakt... Lothar ------------------ "Stellt Euch vor, es geht, und keiner kriegt's hin." (Neuss) Eine Antwort auf diesen Beitrag verfassen (mit Zitat/Zitat des Beitrags) IP |
caaddy Mitglied Bauzeichnerin

 Beiträge: 16 Registriert: 13.10.2003
|
erstellt am: 19. Okt. 2003 21:39 <-- editieren / zitieren --> Unities abgeben:         
|
charlieBV Ehrenmitglied V.I.P. h.c. Bauzeichnerin

 Beiträge: 9319 Registriert: 28.08.2003 Win 10 Pro
|
erstellt am: 20. Okt. 2003 07:23 <-- editieren / zitieren --> Unities abgeben:          Nur für caaddy
Hab im Moment wirklich keine Zeit, also die Kurzform: Klick die Maßkette an, rechte Maustaste Bem. Stil bearbeiten, dann unter Darstellung, die Darstellung aktivieren, für die Deine Änderungen gelten sollen (evtl. müssen diese Schritte wiederholt werden), unter Layer/Farbe/Linientyp schaltest Du am besten erst einmal das Lämpchen für das AEC-Maßgruppensymbol aus (das ist das häßliche # am Anfang der Maßkette), dann gehst Du auf das Reiterchen Weitere, merkst Dir, welcher Bemassungsstil dort verwentet wird und gehst auf ändern, Klicke nun auf der linken Seite in der Liste den eben gemerkten Stil an und gehe wieder auf Ändern. Ich möchte jetzt fast wetten, das unter Einpassen und dort unter Einpassungsoptionen bei Dir "Text immer zwischen Hilfslinien anzeigen" nicht angehakt ist, ebenso, wie Bei Feinabstimmung " Immer Bemassungslinie zwischen Hilfslinien". Wenn Du das machst, dann sollte es funktionieren. Aber denke dran, das ist für die ganze Zeichnung gültig. Du solltest Dir am besten einen Stil neu erstellen, in dem Du einen vorhandenen kopierst und umbenennst. Wenn das alles geschafft ist, dann kannst Du die Maßkette anklicken, im Kontextmenü erscheint Maßtextgriffe aktivieren und über das kleine Kästchen, das erscheint, kannst DU den Text verschieben... Aber beim nächsten Mal lies auch deine PM, das hätte sehr viel Zeit erspart  !!! Gruß Charlie Eine Antwort auf diesen Beitrag verfassen (mit Zitat/Zitat des Beitrags) IP |
caaddy Mitglied Bauzeichnerin

 Beiträge: 16 Registriert: 13.10.2003
|
erstellt am: 22. Okt. 2003 21:52 <-- editieren / zitieren --> Unities abgeben:         
|