| | |
 | Gut zu wissen: Hilfreiche Tipps und Tricks aus der Praxis prägnant, und auf den Punkt gebracht für SolidEdge |
| | |
 | Jos. Schneider Optische Werke GmbH: Automatisierung der Prüfplanerstellung spart bis zu 50% der Zeit und reduziert die Fehleranfälligkeit , ein Anwenderbericht
|
|
Autor
|
Thema: Schnittpfeile verschieben ? (2105 mal gelesen)
|
Nicole32 Mitglied Technische Zeichnerin
  
 Beiträge: 617 Registriert: 30.04.2006 .
|
erstellt am: 01. Aug. 2006 07:14 <-- editieren / zitieren --> Unities abgeben:         
|
Dragonbeat Ehrenmitglied CAD care
    
 Beiträge: 1604 Registriert: 24.03.2006 Solid Edge ST2019 MP4 Smap3D / Partfinder Advanced V9.6 AutoCAD LT 2019 Blender 2.78 Intel Core i7 6700k @ 4,00 GHz 32 GB Ram NVIDIA GeForce GTX 1080 Windows 10 64bit
|
erstellt am: 01. Aug. 2006 07:46 <-- editieren / zitieren --> Unities abgeben:          Nur für Nicole32
Du kannst den Schnittverlauf verschieben, indem du einen doppelklick auf selbigen machst und dann die Schnittverlaufslinie verschiebst, klick auf zurück und fertig. Ich hoffe das war das was du gemeint hast. Eine Antwort auf diesen Beitrag verfassen (mit Zitat/Zitat des Beitrags) IP |
Nicole32 Mitglied Technische Zeichnerin
  
 Beiträge: 617 Registriert: 30.04.2006 .
|
erstellt am: 01. Aug. 2006 07:50 <-- editieren / zitieren --> Unities abgeben:         
|
MarkusTatzel Mitglied
 
 Beiträge: 210 Registriert: 06.03.2006
|
erstellt am: 01. Aug. 2006 08:14 <-- editieren / zitieren --> Unities abgeben:          Nur für Nicole32
Hallo Nicole32, wenn ich das richtig verstanden habe, dann soll die Linie die nach dem Pfeil weitergeführt wird kleiner oder 0 sein. Dies erreicht man, wenn man unter den Eigenschaften des Schnittverlaufs die Formatvorlage nur verstärkte Ecken anklickt. Den Wert Abstandspfeil auf z.B. 0 setzen, dann schaut keine Linie über den Pfeil. ------------------ Markus Tatzel Drissler+Plaßmann GmbH Solid System Team Eine Antwort auf diesen Beitrag verfassen (mit Zitat/Zitat des Beitrags) IP |
Dragonbeat Ehrenmitglied CAD care
    
 Beiträge: 1604 Registriert: 24.03.2006 Solid Edge ST2019 MP4 Smap3D / Partfinder Advanced V9.6 AutoCAD LT 2019 Blender 2.78 Intel Core i7 6700k @ 4,00 GHz 32 GB Ram NVIDIA GeForce GTX 1080 Windows 10 64bit
|
erstellt am: 01. Aug. 2006 08:21 <-- editieren / zitieren --> Unities abgeben:          Nur für Nicole32
|
Nicole32 Mitglied Technische Zeichnerin
  
 Beiträge: 617 Registriert: 30.04.2006 .
|
erstellt am: 01. Aug. 2006 08:21 <-- editieren / zitieren --> Unities abgeben:         
|
MarkusTatzel Mitglied
 
 Beiträge: 210 Registriert: 06.03.2006
|
erstellt am: 01. Aug. 2006 08:25 <-- editieren / zitieren --> Unities abgeben:          Nur für Nicole32
|
modeng Ehrenmitglied V.I.P. h.c.
     
 Beiträge: 7061 Registriert: 10.12.2003
|
erstellt am: 01. Aug. 2006 08:26 <-- editieren / zitieren --> Unities abgeben:          Nur für Nicole32
Moin, falls der Grund ist, dass bei einem breiteren Schnitt auch dahinter liegende Teile 'mit ins Bild kommen' und dies nicht erwunscht ist dann kann man die Option 'nur Schnitt' aktivieren. Dies geht nur beim Plazieren es Schnitts. modeng ------------------ And then one wonders why a man/woman ages so fast in this nutty business [Diese Nachricht wurde von modeng am 01. Aug. 2006 editiert.] Eine Antwort auf diesen Beitrag verfassen (mit Zitat/Zitat des Beitrags) IP |
M. Hanke Mitglied Konstruktionsingenieur
 
 Beiträge: 384 Registriert: 05.12.2002 Firma: SolidEdge 2019 Premium + P&ID Design + Piping + Isogen Home: Solid Edge Academic Copy ST8, Win10
|
erstellt am: 01. Aug. 2006 08:40 <-- editieren / zitieren --> Unities abgeben:          Nur für Nicole32
Moin Nicole, Du hast verschiedene Möglichkeiten: 1. Pfeile kürzer machen. Das ist ein wenig fummelig, weil man den Ziehpunkt am Pfeil nicht so einfach findet (ich glaube, der ist am Ende der Linie) 2. Buchstaben verschieben (klicken und ziehen auf Buchstaben) 3. Wie schon von Dragonbeat gesagt, Schnitt bearbeiten und die Enden der Schnittlinie verschieben. Dort werden nämlich die Pfeile angehängt. Falls die Schnittansicht dann zu breit ist, einfach mit den Ziehpunkten an der Ansicht beschneiden. ------------------ Gruß Michael --->> Wissen ist Macht. Nichts wissen macht auch nichts. <<---
Eine Antwort auf diesen Beitrag verfassen (mit Zitat/Zitat des Beitrags) IP |
Nicole32 Mitglied Technische Zeichnerin
  
 Beiträge: 617 Registriert: 30.04.2006 .
|
erstellt am: 01. Aug. 2006 08:47 <-- editieren / zitieren --> Unities abgeben:         
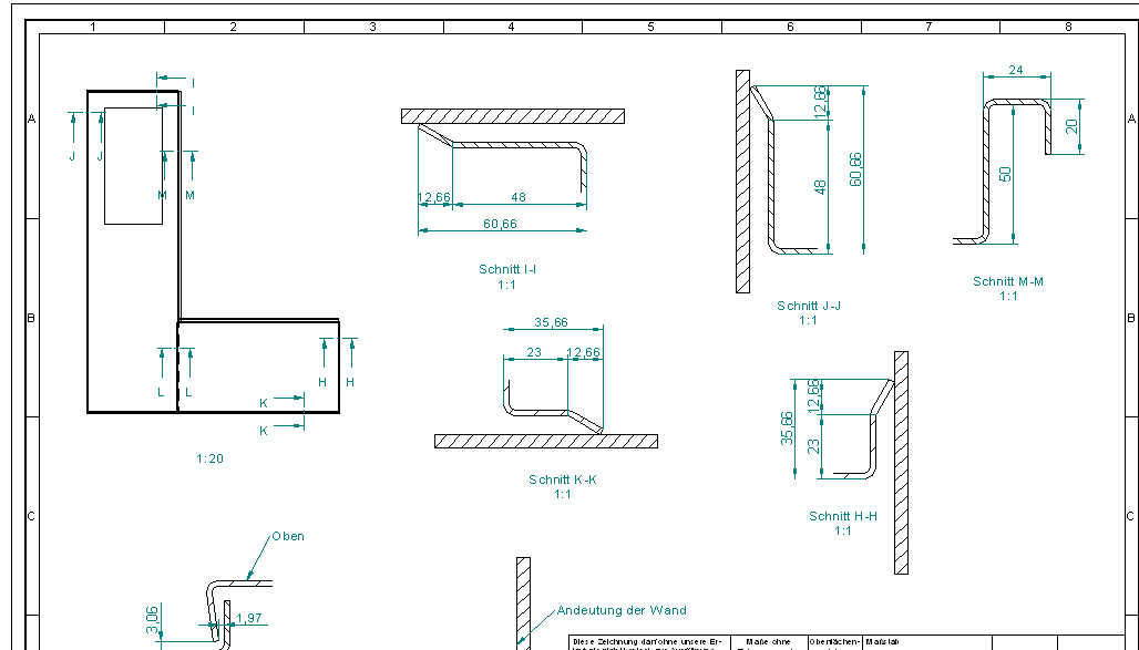
Jo Danke Modeng auch ein guter Tip, werde ich sicher auch noch brauchen. Allderings hat es einen anderen Hintergund: Ich muss die Biegekonturen für den Werker Darstellen und wolle alle Details auf ein Blatt bringen. Wenn ich den Maßstab 1:1 nehme und den schnitt 3mm lang mache kann man alles sehen, aber die Schnittpfeile sind zuweit zusammen. Wenn ich den Schnitt 20mm lang mache sieht man zuviel und das Detail ist zu groß. (zuviel Info, die man nicht braucht) Siehe Bild Gruss Nicole [Diese Nachricht wurde von Nicole32 am 01. Aug. 2006 editiert.] Eine Antwort auf diesen Beitrag verfassen (mit Zitat/Zitat des Beitrags) IP |
modeng Ehrenmitglied V.I.P. h.c.
     
 Beiträge: 7061 Registriert: 10.12.2003
|
erstellt am: 01. Aug. 2006 08:53 <-- editieren / zitieren --> Unities abgeben:          Nur für Nicole32
|
Nicole32 Mitglied Technische Zeichnerin
  
 Beiträge: 617 Registriert: 30.04.2006 .
|
erstellt am: 01. Aug. 2006 08:54 <-- editieren / zitieren --> Unities abgeben:         
Jo hat funktioniert Danke Auf die einfachsten sachen kommt man manchmal nicht Nicole Edit: das ergebniss, ich bin begeistert Dankeeeeeeeee 
[Diese Nachricht wurde von Nicole32 am 01. Aug. 2006 editiert.] Eine Antwort auf diesen Beitrag verfassen (mit Zitat/Zitat des Beitrags) IP |

| |
Nicole32 Mitglied Technische Zeichnerin
  
 Beiträge: 617 Registriert: 30.04.2006 .
|
erstellt am: 01. Aug. 2006 09:38 <-- editieren / zitieren --> Unities abgeben:         
Und Danke modeng's Tip noch ein bissl übersichtlicher (bild) modeng: 'Option 'nur Schnitt' aktivieren. Dies geht nur beim Plazieren es Schnitts.' Gruss Nicole [Diese Nachricht wurde von Nicole32 am 01. Aug. 2006 editiert.] Eine Antwort auf diesen Beitrag verfassen (mit Zitat/Zitat des Beitrags) IP |