| | |
 | Gut zu wissen: Hilfreiche Tipps und Tricks aus der Praxis prägnant, und auf den Punkt gebracht für SOLIDWORKS |
| | |
 | SolidWorks Kurs mit IHK-Zertifzierung , ein Kurs (bis zu 100% förderbar mit Bildungsgutschein)
|
|
Autor
|
Thema: 3D-Skizze austragen (11201 mal gelesen)
|
Reckless84 Mitglied
 Beiträge: 8 Registriert: 12.02.2012
|
erstellt am: 12. Feb. 2012 18:03 <-- editieren / zitieren --> Unities abgeben:         
Hey, folgendes Problem. Ich möchte in einem erstellten Volumenkörper eine Schräge Austragung einfügen. Nur komm ich nicht zum Ziel. Hab diverse Skizzen über die betreffenden Ebenen erstellt aber beim austragen gabs immer wieder Probleme. Weiß nicht wirklich wie ich weiter machen soll. Die Austragung soll von der Oberkante des Volumenkörpers in einem 7° Winkel bis 6mm unter der Oberfläche erstellt werden und ist rechteckig. Kann mir jemand ein paar Tipps geben wie ich am besten die richtigen Skizzen für die Kontur und die Leitkurve erstelle? Beziehungsweise mit welcher Austragungsart ich dann zum Ziel komme? Vielen Dank schonmal im vorraus. Wenn weitere Informationen benötigt werden einfach schreiben. MFG Robert Eine Antwort auf diesen Beitrag verfassen (mit Zitat/Zitat des Beitrags) IP |
myca Ehrenmitglied V.I.P. h.c. Konstrukteur

 Beiträge: 4383 Registriert: 15.06.2007 SW 2007 SW 2018 2,67 GHz,2 GB, ATI FIRE GL V5200, XP 64 3,4 GHz, 8GB, ATI FIRE PRO V7800, WIN 10 Pro
|
erstellt am: 12. Feb. 2012 18:26 <-- editieren / zitieren --> Unities abgeben:          Nur für Reckless84
|
myca Ehrenmitglied V.I.P. h.c. Konstrukteur

 Beiträge: 4383 Registriert: 15.06.2007 SW 2007 SW 2018 2,67 GHz,2 GB, ATI FIRE GL V5200, XP 64 3,4 GHz, 8GB, ATI FIRE PRO V7800, WIN 10 Pro
|
erstellt am: 12. Feb. 2012 18:33 <-- editieren / zitieren --> Unities abgeben:          Nur für Reckless84
|
Reckless84 Mitglied
 Beiträge: 8 Registriert: 12.02.2012
|
erstellt am: 12. Feb. 2012 18:55 <-- editieren / zitieren --> Unities abgeben:         
Hab mal schnell eine kleine Skizze gemacht wie es werden soll. die linke Seite (volle Tiefe der Schrägen) ist dann noch offen, weil in der tiefe noch eine gerade fläche entsteht.Vorwiegend gehts mir um die Shcräge Fläche über 2 Ebenen. Wie ich diese am besten erstelle. Hoffe die Skizze reicht fürs erste.
Eine Antwort auf diesen Beitrag verfassen (mit Zitat/Zitat des Beitrags) IP |
Reckless84 Mitglied
 Beiträge: 8 Registriert: 12.02.2012
|
erstellt am: 12. Feb. 2012 19:05 <-- editieren / zitieren --> Unities abgeben:         
|
myca Ehrenmitglied V.I.P. h.c. Konstrukteur

 Beiträge: 4383 Registriert: 15.06.2007 SW 2007 SW 2018 2,67 GHz,2 GB, ATI FIRE GL V5200, XP 64 3,4 GHz, 8GB, ATI FIRE PRO V7800, WIN 10 Pro
|
erstellt am: 12. Feb. 2012 19:15 <-- editieren / zitieren --> Unities abgeben:          Nur für Reckless84
|
Reckless84 Mitglied
 Beiträge: 8 Registriert: 12.02.2012
|
erstellt am: 12. Feb. 2012 19:52 <-- editieren / zitieren --> Unities abgeben:         
|
myca Ehrenmitglied V.I.P. h.c. Konstrukteur

 Beiträge: 4383 Registriert: 15.06.2007 SW 2007 SW 2018 2,67 GHz,2 GB, ATI FIRE GL V5200, XP 64 3,4 GHz, 8GB, ATI FIRE PRO V7800, WIN 10 Pro
|
erstellt am: 12. Feb. 2012 19:55 <-- editieren / zitieren --> Unities abgeben:          Nur für Reckless84
|
Reckless84 Mitglied
 Beiträge: 8 Registriert: 12.02.2012
|
erstellt am: 12. Feb. 2012 20:38 <-- editieren / zitieren --> Unities abgeben:         
so nun ist da noch eine Schräge Fläche die im Winkel von 7,7 Grad ausgetragen werden soll. Hab schon bei der ersten Skizze versucht die Form von oben auszutragen. Das ging ja viel leichter von der Seite wie du es gemacht hast. Aber bei dieser Form ist das ja nun nicht so einfach von der Seite. Muss man da eine neue Ebene für die 20 Grad Schräge erstellen oder wie macht man das am besten? MFG Eine Antwort auf diesen Beitrag verfassen (mit Zitat/Zitat des Beitrags) IP |
myca Ehrenmitglied V.I.P. h.c. Konstrukteur

 Beiträge: 4383 Registriert: 15.06.2007 SW 2007 SW 2018 2,67 GHz,2 GB, ATI FIRE GL V5200, XP 64 3,4 GHz, 8GB, ATI FIRE PRO V7800, WIN 10 Pro
|
erstellt am: 12. Feb. 2012 21:55 <-- editieren / zitieren --> Unities abgeben:          Nur für Reckless84
 So, vo oben 1 Skizze mit 2 3-Ecken (der Form von Schrägen entsprechend)drauf. Eine Austragung von den 3-Ecken bis Eckpunkt (unten). Ich schon auf dem Sofa und kein SWX zu Hause. G. thomas ------------------ [Diese Nachricht wurde von myca am 13. Feb. 2012 editiert.] Eine Antwort auf diesen Beitrag verfassen (mit Zitat/Zitat des Beitrags) IP |
maddy Mitglied CAD-CAM Programmierer
 
 Beiträge: 237 Registriert: 07.09.2006
|
erstellt am: 13. Feb. 2012 23:22 <-- editieren / zitieren --> Unities abgeben:          Nur für Reckless84
Hallo, einfach von oben gerade Austragen und dann Fase ran (90°-7,7° =82,3° Fase ,Höhe 5,003mm) MfG ------------------ Gib mir die Gelassenheit, die Dinge zu ertragen, die ich nicht ändern kann. Gib mir den Mut die Dinge zu ändern, die ich ändern kann und gib mir die Weisheit die Dinge zu unterscheiden. mfG maddy Eine Antwort auf diesen Beitrag verfassen (mit Zitat/Zitat des Beitrags) IP |
sonti Mitglied dipl. Masch.-Ing.
   
 Beiträge: 1175 Registriert: 26.01.2007 Solid Works 2017 SP5 Inventor 2015 Windows 10 SWX (mein Liebling)
|
erstellt am: 14. Feb. 2012 07:38 <-- editieren / zitieren --> Unities abgeben:          Nur für Reckless84
|
Reckless84 Mitglied
 Beiträge: 8 Registriert: 12.02.2012
|
erstellt am: 14. Feb. 2012 19:18 <-- editieren / zitieren --> Unities abgeben:         
SO hab das Modell weiter bearbeitet und hat auch alles wunderbar geklappt mit den Tipps und Zeichnungen von euch. Nun gehts weiter.möchte einmal so einen halben Trichter ausformen aus den Block. Hab da auch mal eine Zeichnung mit angehangen. (als .sldprt Datei wollt ichs auch hochladen (die 3d skizzen) da sagt mir die seite hier einen fehler an) Hab das mit 3d skizzen probiert und wollte es dann ausformen komme aber nicht zum ziel das diese Form ausgetragen wird. Geh ich da falsch ran? Ist sowas auch mit einfachen Skizzen auf einer Ebene, ohne 3d Skizze? MFG Robert Eine Antwort auf diesen Beitrag verfassen (mit Zitat/Zitat des Beitrags) IP |
Krümmel Moderator Konstrukteur mit rotierter Vergangenheit
       

 Beiträge: 6243 Registriert: 14.09.2008 Was mit SWX so alles geht ;-)
|
erstellt am: 14. Feb. 2012 19:23 <-- editieren / zitieren --> Unities abgeben:          Nur für Reckless84
|
Reckless84 Mitglied
 Beiträge: 8 Registriert: 12.02.2012
|
erstellt am: 14. Feb. 2012 20:15 <-- editieren / zitieren --> Unities abgeben:         
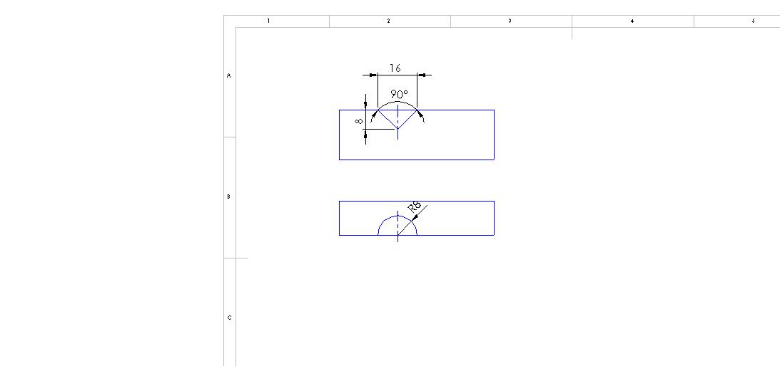
gut ok das war ja einfach..hätte ich auch selber frauf kommen können :-D danke :-) So und nun hab ich noch folgende Kontur/Form die ich erstellen will. so ein viertelbogen, wie auf der Zeichnung zu sehen soll sich im 45° Winkel zu der unteren (inneren) Kontur in den Volumenkörper 12mm einfügen. Also außenkontur auf 0 und die innenkontur auf -12mm. mit dazwischenliegender schräge von 45°. Hoffe ich hab das einigermaßen verständlich erklärt :-D MFG und Danke :-) Eine Antwort auf diesen Beitrag verfassen (mit Zitat/Zitat des Beitrags) IP |
myca Ehrenmitglied V.I.P. h.c. Konstrukteur

 Beiträge: 4383 Registriert: 15.06.2007 SW 2007 SW 2018 2,67 GHz,2 GB, ATI FIRE GL V5200, XP 64 3,4 GHz, 8GB, ATI FIRE PRO V7800, WIN 10 Pro
|
erstellt am: 14. Feb. 2012 20:29 <-- editieren / zitieren --> Unities abgeben:          Nur für Reckless84
 Hi, wieso habich das Gefühl, das Du uns auf die Schippe nimmst... Wenn das hier weiter so geht (ohne Deine Eigenleistung), dauert es nicht lange und antworten mußt Du Dir dann selber. G. thomas ------------------ Eine Antwort auf diesen Beitrag verfassen (mit Zitat/Zitat des Beitrags) IP |
Krümmel Moderator Konstrukteur mit rotierter Vergangenheit
       

 Beiträge: 6243 Registriert: 14.09.2008 Was mit SWX so alles geht ;-)
|
erstellt am: 14. Feb. 2012 20:30 <-- editieren / zitieren --> Unities abgeben:          Nur für Reckless84
Hallo gebogenes Langloch und Fase Grüße Andreas
Edit mir fallen da aber noch paar Wege ein bis hin zu Formnest ------------------ Stillstand ist Rückschritt [Diese Nachricht wurde von Krümmel am 14. Feb. 2012 editiert.] Eine Antwort auf diesen Beitrag verfassen (mit Zitat/Zitat des Beitrags) IP |
maddy Mitglied CAD-CAM Programmierer
 
 Beiträge: 237 Registriert: 07.09.2006
|
erstellt am: 14. Feb. 2012 21:04 <-- editieren / zitieren --> Unities abgeben:          Nur für Reckless84
Hallo Reckless84, einfach mal die Lehrbücher in SWX  (Solidworks) durcharbeiten. Dort sind die wichtigsten Grundfeatures drinn und du wirst Step by Step geführt. So lernst du Austragungen und Rotationen und Radien und Fasen und weitere Dinge. Damit kommst du dann schon sehr weit Dann fällt dir auch das Zeichnen der Basics nach denen du hier fragst sicherlich ganz leicht. Mfg Maddy ------------------ Gib mir die Gelassenheit, die Dinge zu ertragen, die ich nicht ändern kann. Gib mir den Mut die Dinge zu ändern, die ich ändern kann und gib mir die Weisheit die Dinge zu unterscheiden. mfG maddy [Diese Nachricht wurde von maddy am 14. Feb. 2012 editiert.] Eine Antwort auf diesen Beitrag verfassen (mit Zitat/Zitat des Beitrags) IP |
maddy Mitglied CAD-CAM Programmierer
 
 Beiträge: 237 Registriert: 07.09.2006 HP Z640 NVIDIA Quadro k4200 4 GB Xeon® Processor E5-1650v3 6CORE 3,5/3,8 Turbo GhZ 32 GB Ram 512 GB SSD Win 7 Professional 64 bit HP Z800 NVIDIA Quadro 5000 2,5 GB XEON X5690 6 CORE 3,46 GhZ 24 GB Ram 256 GB SSD Win 7 Professional 64 bit XW 8600 FX Quadro 4600 768 MB Xeon Quad 3 GHz 16 Gb Ram Windows 7 64 bit sp 1 HSMWorks 2017 SWX 2014 sp 5 64 bit Solidcam 2015 SP5 + HSM +HSS Spacenavigator
|
erstellt am: 14. Feb. 2012 21:10 <-- editieren / zitieren --> Unities abgeben:          Nur für Reckless84
Zitat: Original erstellt von myca: Hi,wieso habich das Gefühl, das Du uns auf die Schippe nimmst... Wenn das hier weiter so geht (ohne Deine Eigenleistung), dauert es nicht lange und antworten mußt Du Dir dann selber. G. thomas Das hab ich auch gedacht, aber du warst schneller:D
------------------ Gib mir die Gelassenheit, die Dinge zu ertragen, die ich nicht ändern kann. Gib mir den Mut die Dinge zu ändern, die ich ändern kann und gib mir die Weisheit die Dinge zu unterscheiden. mfG maddy Eine Antwort auf diesen Beitrag verfassen (mit Zitat/Zitat des Beitrags) IP |
Reckless84 Mitglied
 Beiträge: 8 Registriert: 12.02.2012
|
erstellt am: 14. Feb. 2012 21:29 <-- editieren / zitieren --> Unities abgeben:         
ja sorry hab lange nichts mehr mit solid works gemacht und muss da so ne Zeichnung für nen Bauteil erstellen was ich fertigen soll. Da fehlt mir grad etwas die Zeit lang zu probieren. Und da alles was ich mit solid works gemacht hab eingerostet ist krieg manch leichte Zeichnungen grad nich in kurzer Zeit so hin wie ich es gern hätte. Danke euch das ihr so geduldig mit mir seid. Werd mich in nächster Zeit mal wieder intensiver mit solid works beschäftigen, so das solche lapidaren fragen nicht mehr hier gepostet werden. :-) MFG Eine Antwort auf diesen Beitrag verfassen (mit Zitat/Zitat des Beitrags) IP |
sonti Mitglied dipl. Masch.-Ing.
   
 Beiträge: 1175 Registriert: 26.01.2007 Solid Works 2017 SP5 Inventor 2015 Windows 10 SWX (mein Liebling)
|
erstellt am: 15. Feb. 2012 08:31 <-- editieren / zitieren --> Unities abgeben:          Nur für Reckless84
|