| | |
 | Gut zu wissen: Hilfreiche Tipps und Tricks aus der Praxis prägnant, und auf den Punkt gebracht für SOLIDWORKS |
| | |
 | Smart Engineering Session: CAD-Automation in SOLIDWORKS in Walluf, eine Veranstaltung am 12.03.2026
|
|
Autor
|
Thema: Perspektivische Ansicht in Zeichnung brechen (1075 mal gelesen)
|
coach328i Mitglied Projektingenieur

 Beiträge: 14 Registriert: 11.05.2007
|
erstellt am: 29. Jul. 2009 08:25 <-- editieren / zitieren --> Unities abgeben:         
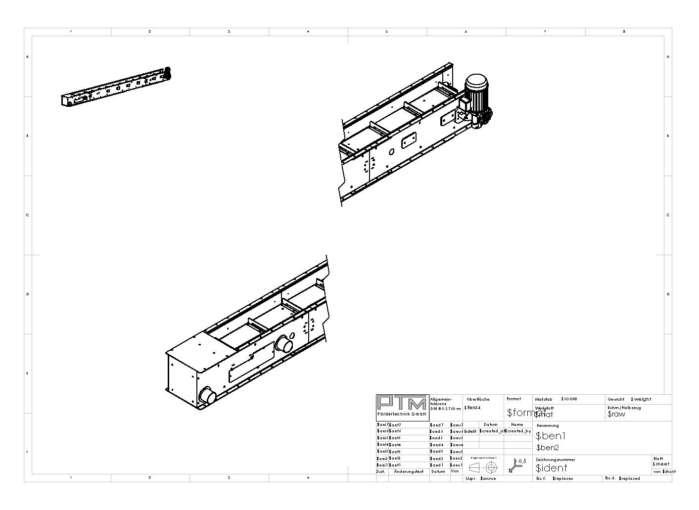
Guten Morgen allerseits, habe mit der Suchfunktion leider nichts passendes gefunden. Gibt es eine möglichkeit perspektivische Ansichten (wie z.B. im Anhang) so zu brechen daß der Rest von der Ansicht nicht so versetzt ist? Gruß Chris [Diese Nachricht wurde von coach328i am 29. Jul. 2009 editiert.] Eine Antwort auf diesen Beitrag verfassen (mit Zitat/Zitat des Beitrags) IP |
Brödlahans Mitglied

 Beiträge: 94 Registriert: 23.05.2008 HP xw4600 WS, Intel Core Duo 1,98Ghz, 3 GB Ram, WIN XP, NVIDIA Quadro FX 1700, SW2008 SP5.0, Huppendorfer Bierkühlung
|
erstellt am: 29. Jul. 2009 08:36 <-- editieren / zitieren --> Unities abgeben:          Nur für coach328i
Hi, warum machst du nicht eine relativ kleine ISO Ansicht und ziehst dir dann Details aus den Ecken, die du besonders hervorheben möchtest? Für dein Problem an sich habe ich leider keine andere Lösung als die beschriebene... Greetz ------------------ In der Windows registry rumzuschreiben ist wie im Dunkeln im gut besuchten Schwimmbad auf Karpfen zu schießen - was du treffen willst trifft man nicht und die Chance was falsches zu treffen ist hoch. - frei nach ibash Eine Antwort auf diesen Beitrag verfassen (mit Zitat/Zitat des Beitrags) IP |
PeppyTrain Mitglied Selbständig
 
 Beiträge: 231 Registriert: 09.10.2006 HP 8740W i7620M QudroFX2800m swx Premium 2011 + 2012 W7Pro64 MSOffice2007Pro OpenOffice + Docking an schönen und weniger schönen Orten mit lustigen Kombinationen unterschiedlichster Bildschirmauflösungen
|
erstellt am: 29. Jul. 2009 09:24 <-- editieren / zitieren --> Unities abgeben:          Nur für coach328i
ACHTUNG KRÜCKE ! .. also wie man sich das vorstell-wünschte ist da nicht, aber ich mache einfach eine zweite Bruchkante senkrecht. Natürlich hat man dann immer noch Versatz, aber mit etwas Glück schaffen es beide Enden aufs Blatt .. Natürlich wäre es für manches (viell. nicht normgerecht) aber schön , die Bruchkanten auch drehen zu können .. Andi ------------------ Alles, was die Sozialisten vom Geld verstehen, ist die Tatsache, daß sie es von anderen haben wollen. (Adenauer) Eine Antwort auf diesen Beitrag verfassen (mit Zitat/Zitat des Beitrags) IP |
coach328i Mitglied Projektingenieur

 Beiträge: 14 Registriert: 11.05.2007
|
erstellt am: 29. Jul. 2009 13:00 <-- editieren / zitieren --> Unities abgeben:         
|