| | |
 | Gut zu wissen: Hilfreiche Tipps und Tricks aus der Praxis prägnant, und auf den Punkt gebracht für SOLIDWORKS |
| | |
 | myCADtools , eine App
|
|
Autor
|
Thema: Fehler Schnittdarstellung (290 mal gelesen)
|
swcad Mitglied konstrukteur
 
 Beiträge: 262 Registriert: 28.04.2005 Solidworks 2015 4.0 Dell precision 7810
|
erstellt am: 10. Feb. 2006 12:00 <-- editieren / zitieren --> Unities abgeben:         
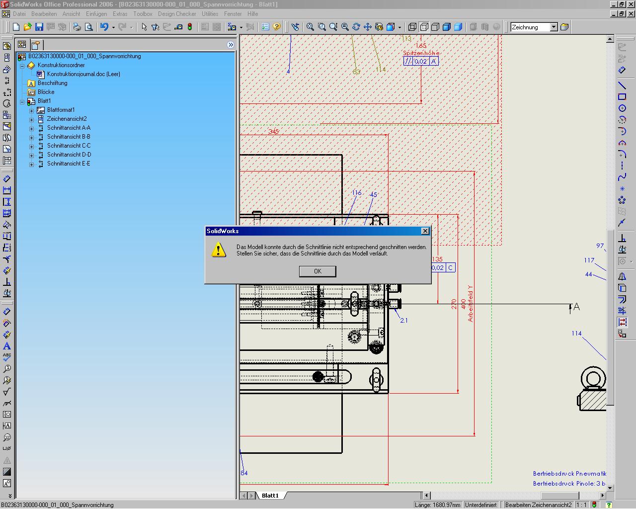
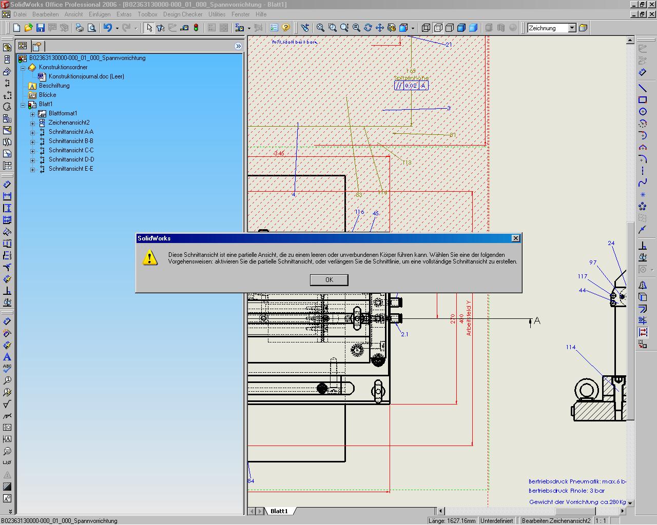
Hallo liebes Forum, ich habe folgendes Problem. Ich habe in SW2004 eine Zeichnungsableitung erstellt und nun erscheint in 2006 folgende Meldung wie im Anhang zu sehen. Ich habe die Schnittlinie schon mal verlängert und neu gezeichnet aber hilft nichts  . Was geht hier ab  ? Gruss Olli Eine Antwort auf diesen Beitrag verfassen (mit Zitat/Zitat des Beitrags) IP |
swcad Mitglied konstrukteur
 
 Beiträge: 262 Registriert: 28.04.2005 Solidworks 2015 4.0 Dell precision 7810
|
erstellt am: 10. Feb. 2006 12:17 <-- editieren / zitieren --> Unities abgeben:         
|
rawo Ehrenmitglied technische Zeichnerin, Hobby-Admin
    
 Beiträge: 1619 Registriert: 29.03.2001 ----------------------------------- Nichtstun macht nur Spass, wenn man eigentlich viel zu tun hätte. (Sir Coward)<P>Status: "Konfigurations-Junkie"
|
erstellt am: 10. Feb. 2006 12:21 <-- editieren / zitieren --> Unities abgeben:          Nur für swcad
Hallo Olli, also man kann auf Deinem Bild leider nicht erkennen, wo die Schnittlinie verläuft.. aber ich kenne diese Meldungen. Bei uns hilft es, die Schnittlinie weit über das Modell hinaus zu verlängern... Neuaufbau oder STR+Q.... dann kannste die Schnittlinie wieder richtig ziehen.... Gruß Ramona ------------------ **Chaos ist die Ordnung, die wir nicht verstehen.** Eine Antwort auf diesen Beitrag verfassen (mit Zitat/Zitat des Beitrags) IP |
Axel Holzhäuer Mitglied Maschinenbauingenieur

 Beiträge: 52 Registriert: 04.02.2004 SW2006 SP3.0
|
erstellt am: 10. Feb. 2006 12:24 <-- editieren / zitieren --> Unities abgeben:          Nur für swcad
Hi Olli, wir haben auch SW von 2004 auf 2006 (SP3.0) aktualisiert. Das gleich Problem tritt bei uns auf, wenn wir einen Teilschnitt haben. Zwar kann man das mit 2006 auch durchführen, aber mit einer alten Zeichnung treten die Probleme auf. Gehe noch einmal in die Schnittskizze wo das Problem auftritt und dann müßte es gehen. Ich habe auch schon einige Schnitte neu erstellt (bestimmt nicht besonders klasse). Der fehler ist aber immer weg, wenn Du in der Skizze die Linie über die Baugruppen / Teilegrenze ziehst und somit keinen Teilschnitt mehr hast. Hoffentlich klappt das auch bei Dir. Gruß Axel Eine Antwort auf diesen Beitrag verfassen (mit Zitat/Zitat des Beitrags) IP |
swcad Mitglied konstrukteur
 
 Beiträge: 262 Registriert: 28.04.2005 Solidworks 2015 4.0 Dell precision 7810
|
erstellt am: 10. Feb. 2006 12:33 <-- editieren / zitieren --> Unities abgeben:         
|
Jan Mitglied Dipl.-Ing.
   
 Beiträge: 1271 Registriert: 23.12.2000 Dienstl. Lenovo 64GB, nVidia, Win10, SW 2019, 2021 u. 2022 Priv. Dell M7740 16GB, nVidia , Win10, SW 2012, SW 2021 und SW 2022 Prem.
|
erstellt am: 10. Feb. 2006 12:49 <-- editieren / zitieren --> Unities abgeben:          Nur für swcad
Moin, hast Du mal die Richtung gewechselt? Manchmal hilft es! Ich vermute, dass ein Teil tangential an seiner äußeren Kontur geschnitten wird. Du kannst ja mal in der BG an der selben Stelle einen Schnitt legen. Oder in der ZG Komponenten aus dem Schnitt auschließen! Jan Eine Antwort auf diesen Beitrag verfassen (mit Zitat/Zitat des Beitrags) IP |

| |
swcad Mitglied konstrukteur
 
 Beiträge: 262 Registriert: 28.04.2005 Solidworks 2015 4.0 Dell precision 7810
|
erstellt am: 10. Feb. 2006 12:59 <-- editieren / zitieren --> Unities abgeben:         
|