| | |
 | Gut zu wissen: Hilfreiche Tipps und Tricks aus der Praxis prägnant, und auf den Punkt gebracht für SOLIDWORKS |
| | |
 | SOLIDWORKS 3D CAD Grundlagen E-Learning , ein Kurs
|
|
Autor
|
Thema: Solidworks bohrt Gewinde selbständig tiefer??? (2654 mal gelesen)
|
Jonischkeit Moderator Freiberuflicher Ingenieurdienstleister (CSWP)
      

 Beiträge: 2661 Registriert: 29.07.2003 CSWP Solidworks verschiedene Rechner
|
erstellt am: 02. Dez. 2005 23:22 <-- editieren / zitieren --> Unities abgeben:         
Hallo an alle mit 2006 SP2 träum ich gerade, oder ist mein Compi reif für´s Wochenende??? Ein einfacher Versuch: Teil erstellen, Gewindebohrung auf die Deckfläche legen, Gewindebeschriftungen einschalten. Noch ist alles richtig, ein 15mm fiefes Gewinde ist 15mm tief. Jetzt das Teil einfach mal 10mm länger machen, das Gewinde ist jetzt 25mm tief, die Kernbohrung bleibt. Das ganze ist so konsequent, daß auch in der Zeichnungsableitung das Gewinde selbständig angepasst wird. Natürlich geht der Mann an der Maschine nicht nach der skizzierten Kernbohrung, sondern nach den Gewindemassen und das Teil ist warscheinlich Schrott. Frage: Kann mal jemand nachprüfen, ob SWX da Schrott gebaut hat , oder ist es mein Rechner, der zum Alteisen muss. Ich frage am Montag mal beim Support nach. Späte Grüße und ein schönes Wochenende Michael <edit> Wenn der Haken bei Gewindedarstellung fehlt (Darstellung mit gestufem Gewinde) funktioniert alles <endedit>
[Diese Nachricht wurde von Jonischkeit am 03. Dez. 2005 editiert.] Eine Antwort auf diesen Beitrag verfassen (mit Zitat/Zitat des Beitrags) IP |
s.giehl Mitglied Ingenieur Maschinenbau/Fahrzeugtechnik
  
 Beiträge: 698 Registriert: 10.07.2002 THINK DEEP
|
erstellt am: 03. Dez. 2005 01:28 <-- editieren / zitieren --> Unities abgeben:          Nur für Jonischkeit
|
wago Mitglied Konstrukteur
  
 Beiträge: 523 Registriert: 07.12.2000
|
erstellt am: 03. Dez. 2005 08:50 <-- editieren / zitieren --> Unities abgeben:          Nur für Jonischkeit
|
Jonischkeit Moderator Freiberuflicher Ingenieurdienstleister (CSWP)
      

 Beiträge: 2661 Registriert: 29.07.2003 CSWP Solidworks verschiedene Rechner
|
erstellt am: 03. Dez. 2005 09:44 <-- editieren / zitieren --> Unities abgeben:         
Hallo Walter, ich hab das noch nicht ganz in allen Einzelheiten durchprobiert. Ist deine Fläche mit Gewinde evtl. die "feste" Fläche (Zeichenebene)? Bohr doch zur Kontrolle nochmal ein Gewinde von der entgegengesetzten Seite rein und schau was dann beim verlängern des Teils passiert. Grüße Michael Eine Antwort auf diesen Beitrag verfassen (mit Zitat/Zitat des Beitrags) IP |
wago Mitglied Konstrukteur
  
 Beiträge: 523 Registriert: 07.12.2000
|
erstellt am: 03. Dez. 2005 20:02 <-- editieren / zitieren --> Unities abgeben:          Nur für Jonischkeit
Hallo Michael, auf der gegenüberliegenden Seite ist es leider so, wie du beschrieben hast Erst nachdem ich das Gewinde in der Bohrungsspezifikation auf 5mm Tiefe geändert habe, wurde es im Teil 15mm tief dargestellt!!! ------------------ Gruß, Walter Eine Antwort auf diesen Beitrag verfassen (mit Zitat/Zitat des Beitrags) IP |
wago Mitglied Konstrukteur
  
 Beiträge: 523 Registriert: 07.12.2000 SWX 2007+8+9 AIP 2009 - 2015 <P>Man sollte viel öfter nachdenken; und zwar vorher. (Verfasser unbekannt)
|
erstellt am: 04. Dez. 2005 10:32 <-- editieren / zitieren --> Unities abgeben:          Nur für Jonischkeit
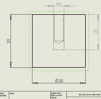
Zum besseren Verständnis noch ein paar Bilder. 1. Bild: Teil wurde um 10mm verlängert, Gewindetiefe ändert sich fälschlicherweise von 15mm auf 25mm, Kernlochtiefe verhält sich korrekt. 2. Bild: Korrekte Gewindetiefe, jedoch erst, nach dem ich die Gewindetiefe, wie oben beschrieben (Darstellung 15mm/Eingabe 5mm), manipuliert habe, siehe 3. Bild. Irgendwie steht hier das Gewindeende noch in Bezug zum ursprünglichen Austragungsende des Teiles. ------------------ Gruß, Walter Eine Antwort auf diesen Beitrag verfassen (mit Zitat/Zitat des Beitrags) IP |
Oberli Mike Ehrenmitglied V.I.P. h.c. Dipl. Maschinen Ing. / Supporter

 Beiträge: 3864 Registriert: 29.09.2004 SOLIDWORKS 2024 SP3.1 SOLIDWORKS 2023 SP5.0 SOLIDWORKS 2022 SP5.0 SOLIDWORKS 2021 SP5.1
|
erstellt am: 05. Dez. 2005 07:56 <-- editieren / zitieren --> Unities abgeben:          Nur für Jonischkeit
Danke Jonischkeit für den Hinweis. Kann 1:1 nachvollzogen werden. Habs gerade beim unserem Support per Mail angefragt. Hoffen wir dass diese Unschönheit schnell geändert wird. Wünsche allen einen guten Start in die neue Woche. ------------------ ( Um an die Quelle zu kommen, muss man gegen den Strom schwimmen ) OM Eine Antwort auf diesen Beitrag verfassen (mit Zitat/Zitat des Beitrags) IP |
Oberli Mike Ehrenmitglied V.I.P. h.c. Dipl. Maschinen Ing. / Supporter

 Beiträge: 3864 Registriert: 29.09.2004 SOLIDWORKS 2024 SP3.1 SOLIDWORKS 2023 SP5.0 SOLIDWORKS 2022 SP5.0 SOLIDWORKS 2021 SP5.1
|
erstellt am: 05. Dez. 2005 09:31 <-- editieren / zitieren --> Unities abgeben:          Nur für Jonischkeit
Meldung von unserem Support: Laut Solidworks Corp. ist der Fehler bekannt und wird in SP3 behoben sein. Na dann, wieder frohes arbeiten mit Gewinden ab SolidWorks 2006 SP3 ------------------ ( Um an die Quelle zu kommen, muss man gegen den Strom schwimmen ) OM Eine Antwort auf diesen Beitrag verfassen (mit Zitat/Zitat des Beitrags) IP |
Jonischkeit Moderator Freiberuflicher Ingenieurdienstleister (CSWP)
      

 Beiträge: 2661 Registriert: 29.07.2003 CSWP Solidworks verschiedene Rechner
|
erstellt am: 05. Dez. 2005 09:40 <-- editieren / zitieren --> Unities abgeben:         
|
Lidi Mitglied Geschäftsführer

 Beiträge: 70 Registriert: 05.03.2003 Mobile Celsius H210 760 2GB RAM, ATI T2e 128 Mb SW 2006 SP5.0EV
|
erstellt am: 05. Dez. 2005 10:08 <-- editieren / zitieren --> Unities abgeben:          Nur für Jonischkeit
Hallo, danke für den wichtigen Hinweis. Ich glaube es gibt hier einen Workaround. Nicht schön, aber bis das SP3 herauskommt vielleicht hilfreich. Nach der Änderung der Plattendicke kann man im Gewindefeature die Gewindedarstellung ausschalten. Dieses Anzeigen lassen und danach wieder die Gewindedarstellung einschalten. Die Darstellung sollte dann wieder in Ordnung sein. mfg Hans ------------------ www.protex.at Eine Antwort auf diesen Beitrag verfassen (mit Zitat/Zitat des Beitrags) IP |
StefanBerlitz Guter-Geist-Moderator IT Admin (CAx)

 Beiträge: 8756 Registriert: 02.03.2000 SunZu sagt: Analysiere die Vorteile, die du aus meinem Ratschlag ziehst. Dann gliedere deine Kräfte entsprechend und mache dir außergewöhnliche Taktiken zunutze.
|
erstellt am: 05. Dez. 2005 11:44 <-- editieren / zitieren --> Unities abgeben:          Nur für Jonischkeit
Hallo Michael, vielen Dank für die Warnung, und schön zu wissen, dass es im nächsten gefixt ist. Aber das ist leider nicht alles in diesem Zusammenhang, beim Rumspielen mit diesem Fehler ist mir noch ein anderer aufgefallen, der allerdings so doll auffällt, dass dadurch kein Schrott entstehen sollte: Wenn ein Gewinde per STRG-Drag auf eine andere Fläche kopiert wird so ist die Gewindedarstellung falsch, der Zielpunkt scheint auf der temporären Achse der Originalbohrung zu liegen. Siehe Screenshot und Video. Sobald ich die SPRs dafür hab schreib ich es hier rein (und auch auf meine offene Fehlerliste auf http://solidworks.cad.de/int_vv-err/int_err-000.htm Ciao, Stefan ------------------ Inoffizielle deutsche SolidWorks Hilfeseite http://solidworks.cad.de OT: Mapcar kann Aufmunterung gebrauchen Eine Antwort auf diesen Beitrag verfassen (mit Zitat/Zitat des Beitrags) IP |
| Ex-Mitglied | |
Jörg Mäckelmann Mitglied CAD-Admin a.D.
 
 Beiträge: 372 Registriert: 09.01.2001 Do wat du wullt, de Lüüt snackt doch ...
|
erstellt am: 05. Dez. 2005 16:55 <-- editieren / zitieren --> Unities abgeben:          Nur für Jonischkeit
Hallo zusammen, zum Thema Gewindetiefen hatten wir auch gerade ein Phänomen - siehe angehängte Datei. (SW2005 SP5.0) Öffnet man den Bohrungs-Assi-Dialog einer dieser betreffenden Gewindebohrungen (8, 10 oder 11) und bestätigt alle Fenster (weil die Einträge dort korrekt sind), wird DIESE Bohrung anschl. auch korrekt dargestellt. Dafür hat sich jetzt aber eine der anderen Gewindedarstellungen geändert (8, 10 oder 11)!?! So kann man fleißig mal die eine, mal die andere Gewindebohrung korrigieren, und immer wieder ist eine andere falsch - und kommt man nie zum Ziel, dass alle Gewindedarstellungen korrekt sind ... Ist auch bereits seit gut einer Woche an den Support gemeldet, aber noch keine Rückmeldung aus den USA ... ------------------ Jörg M. "Fange nicht an aufzuhören, und höre nie auf anzufangen." Eine Antwort auf diesen Beitrag verfassen (mit Zitat/Zitat des Beitrags) IP |
GWS Ehrenmitglied V.I.P. h.c. Konstrukteur Sondermaschinenbau

 Beiträge: 2415 Registriert: 23.07.2001 SWX 24 SP3, PDM Prof. auf Dell Precision 3640 /32GB / NVDIA Quadro P2200 / Win 11
|
erstellt am: 05. Dez. 2005 18:12 <-- editieren / zitieren --> Unities abgeben:          Nur für Jonischkeit
|
StefanBerlitz Guter-Geist-Moderator IT Admin (CAx)

 Beiträge: 8756 Registriert: 02.03.2000 SunZu sagt: Analysiere die Vorteile, die du aus meinem Ratschlag ziehst. Dann gliedere deine Kräfte entsprechend und mache dir außergewöhnliche Taktiken zunutze.
|
erstellt am: 06. Dez. 2005 08:39 <-- editieren / zitieren --> Unities abgeben:          Nur für Jonischkeit
Hallo Jörg, Zitat: Original erstellt von Jörg Mäckelmann: zum Thema Gewindetiefen hatten wir auch gerade ein Phänomen - siehe angehängte Datei. (SW2005 SP5.0)[...] Ist auch bereits seit gut einer Woche an den Support gemeldet, aber noch keine Rückmeldung aus den USA ...
Istauch in der SW2006 SP2.0 zumindest noch so, das liegt daran, dass in dem Modell mit dem letzten Fase-Feature ausgerechnet die Kante, an der die Gewindebeschreibung hängt, weggeschnitten wird. Deswegen muss dann intern eine "neue" Kante gesucht werden. Durch die vielen Querbohrungen kommt SolidWorks dann total durcheinander, welche Kante denn jetzt wohl die Richtige ist. Ich würde empfehlen diese Bohrungen nicht mit dem Fase-Feature zu versehen sondern die Fase direkt mit dem Bohrungsfeature zu machen, dann bleibt es bei meinen oberflächlichen Tests stabil. Ciao, Stefan ------------------ Inoffizielle deutsche SolidWorks Hilfeseite http://solidworks.cad.de OT: Mapcar kann Aufmunterung gebrauchen Eine Antwort auf diesen Beitrag verfassen (mit Zitat/Zitat des Beitrags) IP |
Jörg Mäckelmann Mitglied CAD-Admin a.D.
 
 Beiträge: 372 Registriert: 09.01.2001 Do wat du wullt, de Lüüt snackt doch ...
|
erstellt am: 06. Dez. 2005 20:49 <-- editieren / zitieren --> Unities abgeben:          Nur für Jonischkeit
|
cad manu Mitglied Technische Zeichnerin / Konstrukteurin
  
 Beiträge: 799 Registriert: 01.09.2004
|
erstellt am: 07. Dez. 2005 09:38 <-- editieren / zitieren --> Unities abgeben:          Nur für Jonischkeit
Moin Michael, ist bei deinem Bohrungsassi vielleicht "durch alles" ausgewählt und Du hast hinterher die Stärke des Teiles geändert und nicht "durch alles" durch "blind" ersetzt ?
------------------ Gruß cad manu von ole Eine Antwort auf diesen Beitrag verfassen (mit Zitat/Zitat des Beitrags) IP |
wago Mitglied Konstrukteur
  
 Beiträge: 523 Registriert: 07.12.2000 SWX 2007+8+9 AIP 2009 - 2015 <P>Man sollte viel öfter nachdenken; und zwar vorher. (Verfasser unbekannt)
|
erstellt am: 05. Jan. 2006 20:44 <-- editieren / zitieren --> Unities abgeben:          Nur für Jonischkeit
|