| | |
 | Gut zu wissen: Hilfreiche Tipps und Tricks aus der Praxis prägnant, und auf den Punkt gebracht für SOLIDWORKS |
| | |
 | EU-Maschinenverordnung 2023/1230 & CATIA: Das müssen Sie wissen, ein Fachartikel
|
|
Autor
|
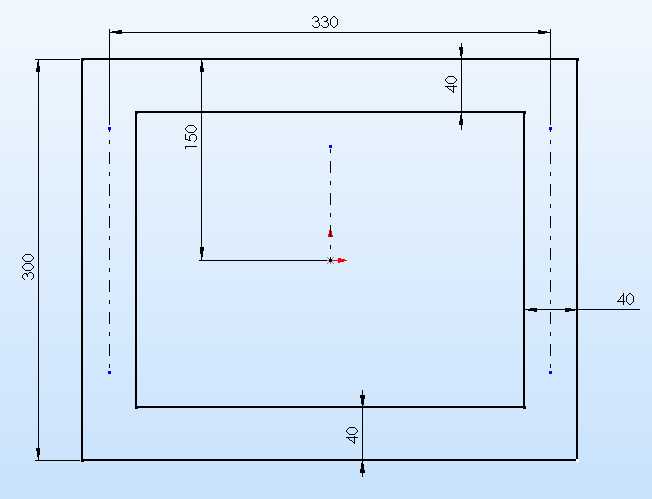
Thema: Skizze unterdefiniert (9270 mal gelesen)
|
cembey Mitglied
 
 Beiträge: 201 Registriert: 20.02.2002
|
erstellt am: 08. Jul. 2002 14:15 <-- editieren / zitieren --> Unities abgeben:         
|
Beere Mitglied Dipl.-Ing. Maschinenbau
   
 Beiträge: 1437 Registriert: 31.07.2001 Pro/E 2001 Wildfire 2 SWX 2013 HP Z400; 4GB
|
erstellt am: 08. Jul. 2002 14:50 <-- editieren / zitieren --> Unities abgeben:          Nur für cembey
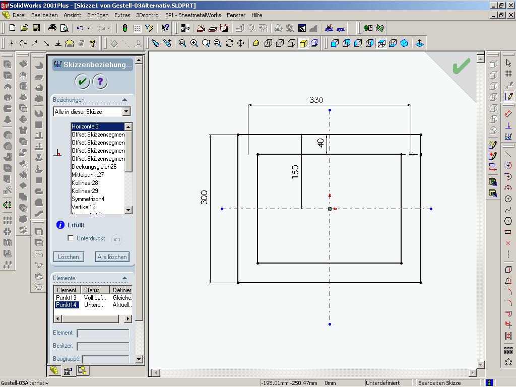
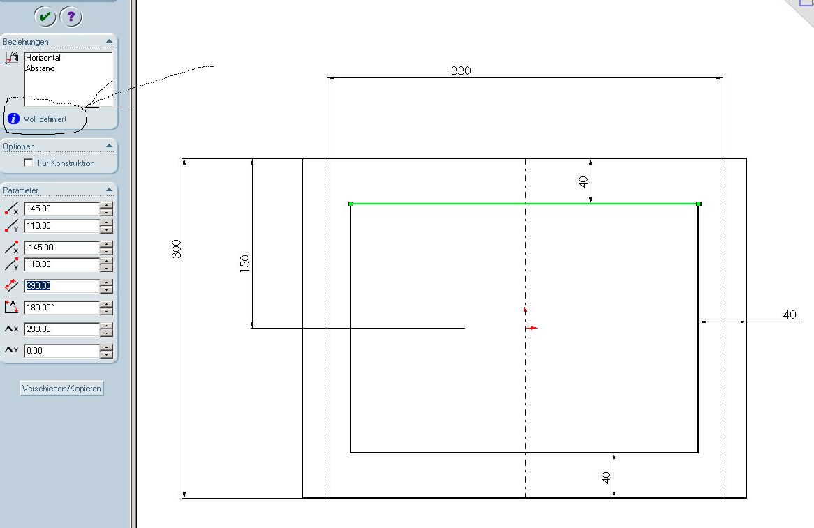
Hi cembay. du wirst irgendwo eine Punkt nihct klar definiert haben und der fällt nicht wirklich auf. Oder eine Horizontal oder Vertikal referenz fehlt um den Punkt zu bestimmen. Klick einfach mal auf die Eckpunkte und "verzieh" die Skizzen...irgendeinen wirst Du erwischen der sich verschieben läßt. Ich tippe auf das Maß 150.... wer tippt ein anderes ? Gruß Andreas Eine Antwort auf diesen Beitrag verfassen (mit Zitat/Zitat des Beitrags) IP |
cembey Mitglied
 
 Beiträge: 201 Registriert: 20.02.2002
|
erstellt am: 08. Jul. 2002 15:20 <-- editieren / zitieren --> Unities abgeben:         
Sehr seltsam, ich bin jedes Element durchgegangen (Punkt, Linie) und jedes Element war im Eigenschaftenmanager Voll definiert, aber die Skizze allgemeint hatte ein Minus. Ist das Normal? @Beere das war ein Zonk (das Maß 150) Eine Antwort auf diesen Beitrag verfassen (mit Zitat/Zitat des Beitrags) IP |
cembey Mitglied
 
 Beiträge: 201 Registriert: 20.02.2002
|
erstellt am: 08. Jul. 2002 15:25 <-- editieren / zitieren --> Unities abgeben:         
noch was, ich habe auch die Konstruktionslinien voll Definiert, was man eigentlich nicht braucht. z.B. die Länge von den Konstruktionslinien muß man nicht voll Definieren und die Skizze ist trotzdem voll Definiert. Eine Antwort auf diesen Beitrag verfassen (mit Zitat/Zitat des Beitrags) IP |
Manuel M Mitglied

 Beiträge: 88 Registriert: 04.02.2002
|
erstellt am: 08. Jul. 2002 15:40 <-- editieren / zitieren --> Unities abgeben:          Nur für cembey
|
CAD-Klaus Mitglied Programmierer-CAD

 Beiträge: 23 Registriert: 28.01.2002
|
erstellt am: 08. Jul. 2002 16:05 <-- editieren / zitieren --> Unities abgeben:          Nur für cembey
Hallo Cembey deine Skizze hat vermutlich offene und geschlossene konturen. versuch die Skizze auszutragen dann wird Dir die offene Stelle auch angezeigt. Entpunkte sind irgendwo nicht Deckungsgleich. Feierabend Cad-Klaus Eine Antwort auf diesen Beitrag verfassen (mit Zitat/Zitat des Beitrags) IP |
Andreas Müller Mitglied Masch. Ing. HTL / Betriebsing. STV
   
 Beiträge: 1151 Registriert: 11.04.2001
|
erstellt am: 08. Jul. 2002 16:09 <-- editieren / zitieren --> Unities abgeben:          Nur für cembey
Hallo cembey. Ich vermute, wie Andreas (wir Namensvettern müssen doch zusammenhalten ), dass der "Bock" beim Mass "150" zu suchen ist. Wenn ich die obere Linie mit dem Ursprungspunkt vermasse, sieht die Masshilfslinie jedenfalls anders aus (Abstand zum Punkt). Meine Skizze ist jedenfalls ok. ------------------ Gruss Andreas A+E Müller AG Eine Antwort auf diesen Beitrag verfassen (mit Zitat/Zitat des Beitrags) IP |
Alexis Mitglied Konstrukteur/Admin
 
 Beiträge: 231 Registriert: 05.04.2001 AIP/AIS2010 - Productstream Professional 2010 WIN XP Prof 64bit NVIDIA 1400
|
erstellt am: 08. Jul. 2002 16:39 <-- editieren / zitieren --> Unities abgeben:          Nur für cembey
HI, ich bin derselben Meinung wie CAD-Klaus, ich denke es sind offene Konturen enthalten, klick mal alle Linien durch ob si irgendwo durch ein Punkt getrennt sind ?? Dann das Telstück löschen und auf die andere Linie trimmen. Kann passieren wenn man Linien wegtrimmt ..... may be wars das ??? schönen sonnigen Feierabend wünscht Alexis Eine Antwort auf diesen Beitrag verfassen (mit Zitat/Zitat des Beitrags) IP |
Beere Mitglied Dipl.-Ing. Maschinenbau
   
 Beiträge: 1437 Registriert: 31.07.2001 Pro/E 2001 Wildfire 2 SWX 2013 HP Z400; 4GB
|
erstellt am: 08. Jul. 2002 18:01 <-- editieren / zitieren --> Unities abgeben:          Nur für cembey
|
cembey Mitglied
 
 Beiträge: 201 Registriert: 20.02.2002
|
erstellt am: 09. Jul. 2002 09:03 <-- editieren / zitieren --> Unities abgeben:         
Danke für die vielen Antworten, aber leider muß ich euch entäuschen  1) Skizze hat keine offene Kontur, weil man sie austragen kann. 2) Linien sind nicht geteilt, bin alle durchgegangencembeyq 3) Beim Maß 150 finde ich auch nichts, habe schon auf verschiedene Weise probiert. Leute ich benutze Gleichungen, kann das eine Rolle spielen?
Eine Antwort auf diesen Beitrag verfassen (mit Zitat/Zitat des Beitrags) IP |
cembey Mitglied
 
 Beiträge: 201 Registriert: 20.02.2002
|
erstellt am: 09. Jul. 2002 09:13 <-- editieren / zitieren --> Unities abgeben:         
|
D.Loistl Mitglied Konstrukteur
  
 Beiträge: 507 Registriert: 17.04.2001 Core i7-9700 3,6GHz; 64GB Ram; NVIDIA Quadro P4000; Win10 ; ME10 17,00B; SWX 2017 SP5.0
|
erstellt am: 09. Jul. 2002 09:33 <-- editieren / zitieren --> Unities abgeben:          Nur für cembey
Hallo. versuche doch mal die Breite nicht über eine doppelte Symetrie zu definieren, sondern wenigstens eine Seite mit Maßen direkt zu Definieren. Ich weiß nicht ob der Rechner es schnallt, wenn man mehrere Symetrien verschachtelt. Kann ich momentan nicht testen, da ich das sch... Dongle gerade nicht habe.  ------------------ Grüße aus dem Schwabenland Dieter Eine Antwort auf diesen Beitrag verfassen (mit Zitat/Zitat des Beitrags) IP |
gpriess Mitglied Dipl.-Ing.
 
 Beiträge: 227 Registriert: 06.07.2000
|
erstellt am: 09. Jul. 2002 09:44 <-- editieren / zitieren --> Unities abgeben:          Nur für cembey
Hi, gehe mal nach "Extras --> Optionen --> Skizze" und aktiviere den Schalter "Elementpunkte anzeigern". Auf deinen Screenshots sieht's so aus als ob das nicht der fall ist. Dann wirst du sehen, dass irgendwo ein Endpunkt einer Linie noch blau ist. hoffe das hilft Gerhard Eine Antwort auf diesen Beitrag verfassen (mit Zitat/Zitat des Beitrags) IP |
StefanBerlitz Guter-Geist-Moderator IT Admin (CAx)

 Beiträge: 8756 Registriert: 02.03.2000 SunZu sagt: Analysiere die Vorteile, die du aus meinem Ratschlag ziehst. Dann gliedere deine Kräfte entsprechend und mache dir außergewöhnliche Taktiken zunutze.
|
erstellt am: 09. Jul. 2002 09:52 <-- editieren / zitieren --> Unities abgeben:          Nur für cembey
Hallo cembey, Spann uns alle nicht so auf die Folter und mach doch mal ein Upload von dem Ding als SolidWorks Modell, das scheint ja sehr überschaubar zu sein, dann können wir das runterladen und selbst versuchen dahinter zu kommen Ciao, Stefan ------------------ Inoffizielle deutsche SolidWorks Hilfeseite http://solidworks.cad.de Eine Antwort auf diesen Beitrag verfassen (mit Zitat/Zitat des Beitrags) IP |
cembey Mitglied
 
 Beiträge: 201 Registriert: 20.02.2002
|
erstellt am: 09. Jul. 2002 10:04 <-- editieren / zitieren --> Unities abgeben:         
Sehr komisch, habe ein neues Teil geöffnet und da die Skizze erstellt, siehe da voll Definiert. Dann stimmt was mit dem Dokument nicht, oder? Na ja ich lade es mal hoch und ihr könnt es auch mal probieren.
Eine Antwort auf diesen Beitrag verfassen (mit Zitat/Zitat des Beitrags) IP |
CAD-Klaus Mitglied Programmierer-CAD

 Beiträge: 23 Registriert: 28.01.2002
|
erstellt am: 09. Jul. 2002 10:14 <-- editieren / zitieren --> Unities abgeben:          Nur für cembey
|
cembey Mitglied
 
 Beiträge: 201 Registriert: 20.02.2002
|
erstellt am: 09. Jul. 2002 10:23 <-- editieren / zitieren --> Unities abgeben:         
|
Alexis Mitglied Konstrukteur/Admin
 
 Beiträge: 231 Registriert: 05.04.2001 AIP/AIS2010 - Productstream Professional 2010 WIN XP Prof 64bit NVIDIA 1400
|
erstellt am: 09. Jul. 2002 10:30 <-- editieren / zitieren --> Unities abgeben:          Nur für cembey
Hi, mhhh was da nich stimmt ... komm grad auch nich drauf, ABER : ich würde sagen die Skizze ist ein wenig kompliziert erstellt, mit den symmetrien und so ... eine einfache Diagonale in einem Rechteck, welche per mittelpunkt auf den Ursprung gesetzt ist, ist da wesentlicher komfortabler ..... mein ich wenigstens. noch was anderes : Ist das denn ein Entwurf ? oder gehen so bei Euch auch BG als Parts in die Fertigung? CU Alexis Eine Antwort auf diesen Beitrag verfassen (mit Zitat/Zitat des Beitrags) IP |
cembey Mitglied
 
 Beiträge: 201 Registriert: 20.02.2002
|
erstellt am: 09. Jul. 2002 10:51 <-- editieren / zitieren --> Unities abgeben:         
Zur Beruhigung, es ist ein Entwurf. Das gibt ein Gestell und zum Testen und ausprobieren habe ich es aus einem und solid modelliert. Später ist es eine BG aus Profilen. Ich wollte halt dahinterkommen was ich falsch gemacht habe. Natürlich gibt es sehr viele Wege, auch komfortablere. Aber so sollte es eigentlich auch funktionieren? mfg Eine Antwort auf diesen Beitrag verfassen (mit Zitat/Zitat des Beitrags) IP |
CAD-Klaus Mitglied Programmierer-CAD

 Beiträge: 23 Registriert: 28.01.2002
|
erstellt am: 09. Jul. 2002 13:20 <-- editieren / zitieren --> Unities abgeben:          Nur für cembey
|
Beere Mitglied Dipl.-Ing. Maschinenbau
   
 Beiträge: 1437 Registriert: 31.07.2001 Pro/E 2001 Wildfire 2 SWX 2013 HP Z400; 4GB
|
erstellt am: 09. Jul. 2002 13:28 <-- editieren / zitieren --> Unities abgeben:          Nur für cembey
|
genrich Mitglied CAD-Konstukteur

 Beiträge: 63 Registriert: 28.02.2001 Lenovo ThinkStation S10 6483 SBB29GE XP SP3 2007 SP5.0 2008 2009 WildFire 3
|
erstellt am: 10. Jul. 2002 11:14 <-- editieren / zitieren --> Unities abgeben:          Nur für cembey
Hallo cembey ich habe inder Skizze erste Beziehung Horisontal einfach geloscht und dan ist die Skizze Volldefiniert op... die Lösung gabs schon , aber mann bekkomt auch sehr interessante Ergebnis wenn mann auf Extra-Skizze-Reparieren geht ------------------ Viele Grüße Genrich [Diese Nachricht wurde von genrich am 10. Juli 2002 editiert.] [Diese Nachricht wurde von genrich am 10. Juli 2002 editiert.] Eine Antwort auf diesen Beitrag verfassen (mit Zitat/Zitat des Beitrags) IP |
cembey Mitglied
 
 Beiträge: 201 Registriert: 20.02.2002
|
erstellt am: 10. Jul. 2002 12:41 <-- editieren / zitieren --> Unities abgeben:         
|